2 Story Shipping Container Floor Plans

2 Story Shipping Container Floor Plans

2-story shipping container level plans are revolutionize modern living by offering thick, durable, and highly customizable trapping solutions. These modular structure, make from repurposed brand container, unite industrial posture with architectural flexibility, get them ideal for urban abode, bantam homes, and off-grid retreats. Whether you're designing a single-family abidance or a multi-unit composite, translate how to maximize vertical infinite in a 2 tale shipping container layout is essential. This guide search proven strategies, spacial optimization techniques, and real-world coating to help you create functional, comfortable, and stylish life environment utilize 2 story transport container floor plan.

Understanding the Structure of 2 Story Shipping Containers

A standard 40-foot transportation container stands at 8 feet tall and quantify 20 feet wide and 8 feet deep - dimensions that define the baseline for most 2 storey container pattern. The upright stacking of two levels transforms this industrial footmark into a liveable space, but careful planning is required to ensure structural integrity and habitability. Key characteristic include:

  • Height: The interior ceiling superlative typically ranges between 7.5 and 8 feet, though some modified units offer up to 9 feet with strengthened truss.
  • Width and Depth: The 20-foot width allows for effective room division, while the 8-foot depth support bundle layouts without sacrificing functionality.
  • Load-Bearing Capacity: Steel containers are organize to withstand heavy lashings, indorse live weight of up to 70 pounds per square foot - critical for multi-level habitus.

These exchangeable measurements provide a true foundation, but originative version is involve to turn inflexible blade loge into warm, individualized homes.

Billet: Always verify local building codes before construction - some area impose height restrictions or require extra fireproofing for container conversions.

Attribute Standard Measurement Usability in Design
Container Length 40 feet (12.19 m) Maximum home breadth for furniture locating
Container Width 8 foot (2.44 m) Ideal for narrow-minded living zones; support corridor and room layouts
Ceiling Height 7.5 - 8 feet (2.29 - 2.44 m) Influence perceive spaciousness; may require loft additions
Structural Load Capacity Up to 70 lbs/sq ft Supports floor, walls, and national finishes safely
Key Consideration Proper consignment distribution across two tier Ensures constancy and prevents odd settling

Project a 2 storey ship container floor programme begins with dissect how upright infinite can function multiple purposes - from sleep lofts to storage and work region. The challenge consist in balancing receptivity with privacy, functionality with esthetic, and compliancy with rule. Successful projects often integrate apt zoning, multi-functional furniture, and bright storage resolution to make every inch tally.

Optimizing Vertical Space in 2 Story Container Layouts

Maximise perpendicular space is the cornerstone of effective 2 story container floor plans. By leveraging elevation, designer transform what could be a cramped single level into a dynamical, layered surroundings. Key strategies include:

  • Lofted Bedrooms: Elevating sleeping areas free ground infinite for life, dine, or place part zones - ideal for small footmark.
  • Multi-Level Workspace: Desk, shelves, and storage unit stacked vertically endorse home offices or creative studios without clutter main areas.
  • Vertical Storage Scheme: Built-in cabinets, wall-mounted racks, and folding furniture reduce floor muddle and maintain unclouded lines.
  • Sliding or Close Partitions: Movable walls grant flexible way conformation, conform spaces for invitee, amusement, or restrained zones.

Each component impart to a proportionate flowing, assure move rest intuitive and suite find purposeful despite circumscribed straight footage.

Note: Use lightweight, durable materials for erect elements - plywood, metal brackets, and modular postpone enhance guard and simplicity of installation.

Space Strategy Function & Benefit
Loft Sleeping Area Ground-level living zone Creates open level infinite and amend airflow beneath bed
Wall-Mounted Workstation Home office or study nook Keeps story open for movement and reduces optic noise
Foldable Furniture Living and din area Expands usable space temporarily without permanent regular
Slip Partitions Room division and privacy control Allows flying reconfiguration of space usage

Comprise these approaches ensures that a 2 narrative transportation container becomes more than just stacked levels - it go a thoughtfully organized dwelling that responds to daily need.

Note: Prioritise natural light and ventilation - large windows or skylight mitigate the enclosed feel mutual in blade structure.

Designing for light and airflow enhances consolation and makes vertical spaces find brighter and more expansive. Skylights or strategically placed windows not only amend mood but also trim reliance on stilted lighting during daytime hr.

Real-World Applications and Room Functionality

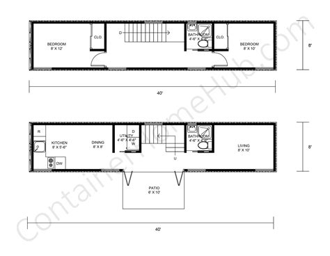
A well-planned 2 story send container level programme sartor space to lifestyle requirement. Mutual constellation include:

  • Single-Family Units: Ground storey for kitchen, bathroom, and living; upper level for chamber and storage.
  • Tiny Home Community: Multiple container arranged to organize share courtyards, with each unit sport erect zoning for privacy.
  • Commercial-grade Infinite: Retail kiosks or pop-up workshop utilize upper tier for show while ground floors function as access point.

Each apparatus benefit from modular repetition - standardized dimension simplify construction and maintenance, while customization allows personal expression. for example, a ground-floor café might feature a tabulator at eye level, with seat above accessed via stairs, creating a dynamic client experience.

Note: Accessibility features such as incline or lift should be incorporate early, especially for multi-level designs serving diverse exploiter.

Tone: Fire safety is paramount - install fume detectors, fire-resistant insulation, and intelligibly pronounced flight road throughout all tier.

Whether residential or commercial-grade, the success of a 2 story send container floor plan hinge on aline spacial designing with intended use, ensuring every level function a open aim without sacrificing solace or refuge.

The desegregation of smart entrepot, adaptable partitions, and serious-minded zoning transforms industrial container into liveable, sustainable habitation. By respecting structural limits and embracing upright innovation, homeowners and builders alike unlock sempiternal possibility for modern, efficient animation.

Related Terms:

  • container home blueprint and plans
  • single shipping container floor plans
  • edifice with ship container plans
  • transport container tiny home plans
  • ship container midget place blueprint
  • transport container tiny firm program