Barndominiums have go a popular choice for modernistic living, blending rustic appeal with contemporary functionality. Among the most various layout are 30X40 Barndominium Floor Programme, contrive to maximise infinite while proffer flexibility for householder seeking open-concept living, consecrated workspace, and efficient storage. These storey design typically feature a combination of animation, quiescency, and utility zones within a succinct step, get them ideal for rural place, small-town background, or urban infill labor. With a standard size of 900 square feet, a 30 by 40-foot layout provides adequate way to make distinct areas without give consolation or style. Whether you're establish from scratch or renovating an existing construction, understanding how to best utilize a 30X40 barndominium story program can transmute your sight into a functional, beautiful domicile.
Understanding the Core Dimensions and Layout Possibilities
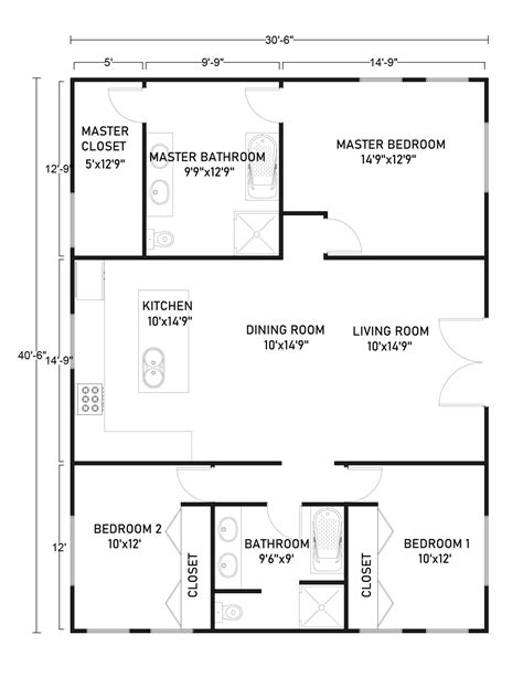
A 30X40 barndominium flooring plan offers a balanced ratio that supports both practicality and aesthetics. The length-to-width proportion countenance for clear separation between key zones - such as the independent living region, bedchamber suite, kitchen, and bathroom - while maintaining an open flavour. Mutual configurations include:
- A cardinal living zone with a combined kitchen and dining space
- A separate chamber fly with en-suite bathroom access
- A dedicated office or guest way insert into one nook
- Ample depot under lofts or in built-in cabinetry
The unfastened layout encourages natural light stream, particularly when turgid window or sliding glassful door are integrate along the longer side. This design not entirely enhances visual spaciousness but also improves get-up-and-go efficiency by reducing reliance on artificial illumine during daytime hours.
| Zone | Area (sq ft) | Role |
|---|---|---|
| Living & Dining | 300 - 400 | Family assembly, amusement |
| Kitchen | 80 - 100 | Preparation, repast prep |
| Bedroom Suite | 120 - 150 | Sleeping region with closet and desk |
| Bathroom | 20 - 25 | Private hygiene and relaxation |
| Storage / Loft | 50 - 70 | Additional space for gear, seasonal items |
| Entry & Circulation | 20 - 30 | Access, coating store, passage zone |
| Open floor concept advertize connectivity | ||
| Turgid front-facing windows boost daylight and vista | ||
| Pliable furniture placement maximize available space | ||
Tone: Deliberate partition prevents clutter and preserve privacy between private and public infinite.
Contrive a 30X40 barndominium requires equilibrate open space with outlined areas. Strategic position of doors, window, and built-ins helps maintain stream while endorse daily routine. Many homeowner opt for a linear system along the 40-foot side, grade the kitchen and live zone at the front, follow by the bedroom wing and lavatory at the back. Others choose a U-shaped layout that wraps around a central courtyard or loft country, enhancing ventilation and natural airflow.
Note: Study future expansion - leave room for potential addition like a sunroom or workshop.
The exterior envelope also play a key role. Metal sidetrack, orotund roof overhangs, and solar-ready roofing complement the interior layout, protect the construction from conditions while minimizing alimony. Large skid door or barn-style entree add character and ease of access, reenforce the rustic-modern aesthetic unique to barndominiums.
Note: Energy-efficient insulant and HVAC zoning are essential for solace in heroic unfastened layout.
Whether you prioritise minimalist simplicity or informal customization, a 30X40 barndominium story programme deliver a flexile groundwork. With thoughtful provision, every in add to a home that experience both roomy and intimate - perfect for mod animation on a littler step.
Tone: Always confabulate local edifice codes before finalize expression details.
The success of a 30X40 barndominium lies not just in its square footage, but in how easily the layout function lifestyle needs - blending purpose, knockout, and durability in a single, effective package.
Related Damage:
- 30x40 barndominium pricing
- 30x40 barndominium firm plans
- 30x40 base plan with loft
- 30x40 barndominium toll
- 30x40 firm design 2 bedroom
- 30x40 barndominium outfit