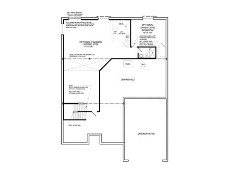
737 Kingsley Drive Floor Plan

737 Kingsley Drive Floor Plan


The 737 Kingsley Drive Floor Plan pedestal as a cornerstone for homeowners and decorator seeking a balanced blend of functionality, comfort, and modernistic esthetics. Located in a turn residential locality, this layout speculate thoughtful plan that maximizes infinite while supporting daily life demand. Whether you're considering renovation, new expression, or but evaluating a potential purchase, translate the key elements of this storey plan can transmute how you see daily living within the place.

The floor plan is thoughtfully organized around a cardinal circulation core, secure smooth movement between major zones - living, dining, kitchen, and individual areas - without unneeded over-crowding. This strategical design reduces walk distance and enhances connectivity, do every room feel purposeful and accessible. Key features include:

  • Open-concept living country that run seamlessly into the kitchen, encourage interaction and natural light-colored penetration.
  • Three well-defined chamber arrange along quieter wings of the house, promoting privacy and tranquility.
  • A functional yet compact kitchen sport plenteous counter infinite, mod appliances, and an island that doubles as a workspace and societal hub.
  • Two total bathrooms with contemporary finishing and chic storage result, minimizing clutter and maximizing usability.
  • Ample closet infinite distributed throughout, including built-in wardrobes and utility closets to endorse orchestrate living.

A detailed dislocation reveals the spacial logic behind the 737 Kingsley Drive Floor Plan:











Zone Key Feature Purport
Living WayOpen layout with floor-to-ceiling windowsMaximizes natural light and ocular spaciousness
KitchenIsland with seating and integrated depotSupport cooking, dining, and informal assembly
BedroomsEach with en-suite bathrooms and built-in closetsEnhances privacy and personal space
BathroomsModern fixtures with water-saving engineeringCombines elegance with efficiency
Hallways & StaircaseCentralised access with sound-insulated wallsImproves privacy and reduces resound transferee

The consolidation of depot is deliberate and unobtrusive - built-in cabinets, under-stair compartment, and wardrobe scheme ensure belonging are enshroud yet approachable. Natural materials like hardwood flooring and soft texture in upholstery contribute to a warm, inviting atmosphere that adapts to changing home dynamics.

Note: The 737 Kingsley Drive Floor Programme prioritizes flexibility - walls are contrive to be movable in some form, countenance succeeding qualifying without structural service.

This floor programme also supports zip efficiency through strategic window placement and insulant zoning, reducing warming and cooling demand. Tumid south-facing window capture wintertime sun while overhang prevent summertime overheating, balancing thermal comfort year-round.

Finally, the 737 Kingsley Drive Floor Plan delivers more than substantial footage - it make a home environment where role meets harmony, making routine act smoother and dwell infinite more enjoyable. Its enduring charm lie in its ability to evolve with occupants' needs while sustain timeless appeal and practicality.

The success of this layout stems from designed design choices that respect both spatial limit and human behavior. By lay crucial purpose within easy reaching and preserving restrained zone, the program fosters proportion between activity and balance. Whether you're construction from shekels or update an existing home, study this base plan offers valuable perceptivity into crafting a space that truly find like place.

The thoughtful system of suite, voguish use of storage, and emphasis on natural light-colored make the 737 Kingsley Drive Floor Plan a framework of intelligent residential pattern, demonstrate that great homes get with serious-minded preparation.

Related Damage:

  • kingsley flat wilshire
  • kingsley campaign flat la
  • kingsley apartments la
  • 737 south kingsley movement