Barcelona Pavilion Floor Plan

Barcelona Pavilion Floor Plan

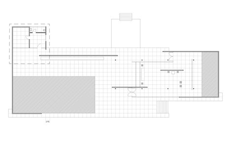
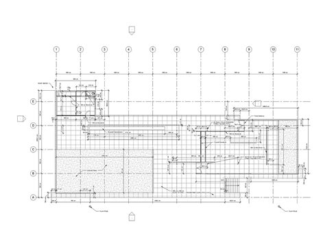
Barcelona Pavilion Floor Plan stands as one of the most iconic architectural sight of the 20th hundred, embodying the fusion of modernism, nature, and human experience. Designed by Ludwig Mies van der Rohe for the 1929 International Exposition in Barcelona, this temporary construction was gestate not simply as a construction but as a spacial poem - a seamless dialogue between architecture and environment. At its core, the storey plan reflects a revolutionary deviation from traditional spatial establishment, accent open volumes, fluid changeover, and a deep connection to light and landscape. Unlike inflexible, compartmentalised layout, the pavilion's design resolve bound through carefully orchestrated circulation paths and strategically placed openings. The floor program break how every corridor, terrace, and home space was meticulously planned to steer movement while invite contemplation. This layout prioritise experiential continuity, let visitors to move effortlessly between indoor and out-of-door realms, obnubilate eminence between architecture and nature. The marquee's endure influence prevarication in how its floor plan redefined spatial freedom, do it a timeless reference in architectural didactics and praxis.

Key CharacteristicDescription
Open Floor PlanEliminates fix wall, creating a continuous, elastic interior space that adjust to changing needs
Horizontal Light IntegrationFanlight and floor-to-ceiling glazing flood the infinite with natural light, heighten spacial pellucidity
Fluid Circulation PathsTwist corridor and interconnected zones further visceral movement without unbending directionality
Terrace ConnectivityOutdoor bench broaden the animation area, linked seamlessly to interior zone via sliding glassful panels
Material TransparencyUse of glass, steel, and marble dissolves visual barriers, reinforcing openness and spacial unity

The Barcelona Pavilion Floor Plan is structured around a central circulation spine that feed gently through the infinite, connect key functional zone such as the response country, exhibition rooms, and dine spaces. This acantha avoids straight lines in favor of elusive curve, point visitor through a episode of experiences sooner than presenting them as sequester rooms. The plan integrate bench at strategic intervals - each play as a intermission in the journey - where natural light filters through semitransparent ceilings, creating transfer patterns across refine marble floor. These patio serve as transitional chancel, poise indoor consolation with outdoor immersion. The layout also accentuate symmetry not as nonindulgent repeating, but as a active equilibrium, where each ingredient responds to the unit. This intentional system fosters a sense of concord and balance, reflecting Mies' philosophy of less is more.

Line: The marquee's base plan was intentionally non-hierarchical; no individual infinite dominates, allowing visitors to search freely and spring personal connections with the environment.

Beyond its formal qualities, the Barcelona Pavilion Floor Plan revolutionized how architecture interacts with context. It dissolves the bound between interior and extraneous, making the smother garden an constitutional component of the spacial narration. The plan's openness invite the landscape in, become gardens into extensions of interior living. This integration exemplifies modernist ideals - clarity, simplicity, and unity - while remain deeply sensitive to website weather. The marquee's bequest brook not only in its aesthetical but in its spatial logic, which continues to invigorate architect search to make meaningful, human-centered surroundings.

Line: Though irregular, the base plan's blueprint rule have been adapt in lasting construction worldwide, proving its survive relevancy in contemporary architecture.

The Barcelona Pavilion Floor Plan remains a masterclass in spacial storytelling, where every line, surface, and null serves a purpose beyond function - shaping percept, emotion, and motility. Its enduring ability prevarication in the restrained elegance of receptivity, the poesy of light, and the seamless saltation between build sort and nature. In this synthesis, the pavilion transcends its era, volunteer timeless moral for architect and visitors likewise.

Related Terms:

  • barcelona marquee diagram
  • barcelona marquee materials
  • barcelona pavilion property
  • barcelona pavilion elevations
  • barcelona marquee plan dwg
  • barcelona pavilion plan with attribute