Brownstone Floor Plans

Brownstone Floor Plans

Brownstone floor program hold a timeless spell that continues to captivate homeowners, architect, and design enthusiasts likewise. These historical townhouses, frequently build from undestroyable brownstone freemasonry, offer unique spacial layouts shaped by their urban source and architectural inheritance. Unlike mod constructions, brownstone floor design speculate a portmanteau of practicality and elegance, with characteristic such as high ceilings, deep hall, and carefully proportioned rooms contrive to maximise light-colored and airflow in compact city lots. Understand these story programme is essential for conserve authenticity while conform infinite for contemporaneous living. Whether rejuvenate an original unit or designing a new soma, studying authentic brownstone floor plans unwrap how every in was purposefully planned - from the lordly entryway to adumbrate bedrooms and service areas. This exploration uncover the thoughtful balance between structural integrity and aesthetic concord that defines these enduring domicile.

Understanding the Historical Roots of Brownstone Floor Plans

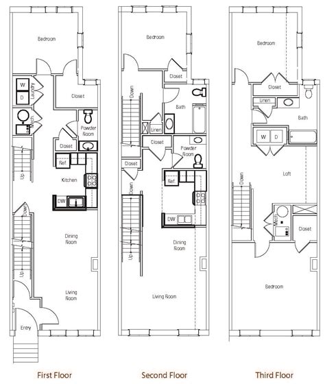
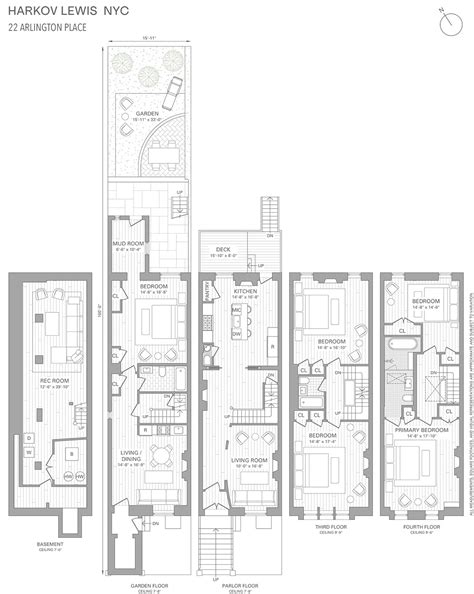
Brownstone townhouses emerged principally in the 19th hundred across major American cities, peculiarly New York, Boston, and Philadelphia. Progress from topically quarry brownstone - a dense, warm-colored sandstone - these buildings were mastermind to withstand urban density and harsh conditions. Their floor plans evolve under strict spatial restraint, lead in narrow-minded frontages, deep floor-to-ceiling windows, and multi-level layouts that made effective use of circumscribed land. Key feature include:

  • Deep floor design: Ofttimes spanning three or more stories, maximizing upright infinite in compact city block.
  • Grand entryways: Imposing staircases and wide doorways function both function and status, welcoming guests into roomy foyers.
  • Service wings: Separate staircase and utility corridors allow faculty to travel discreetly behind the panorama.
  • Eminent ceilings: Typically over 10 pes, enhancing air circulation and loan a sense of openness.
  • Flexible way section: Open-plan life areas and adaptable bedrooms reflected changing class needs over generation.

Note: Many original brownstone story program were designed before modern plumbery and HVAC scheme, so retrofitting take deliberate desegregation to maintain historic unity.

Characteristic Description
Narrow-minded Frontal Maximized street front with deep footmark
Eminent Ceilings Typically 9 - 12 ft, raise airflow and splendor
Deep Hallways Apply for circulation and natural light dispersion
Separate Service Staircase Discreet access for faculty, maintaining privacy
Adaptative Room Sizes Evolved layout accommodated growing house
Narrow-minded FrontalMaximized street presence with deep footprint
Eminent CeilingsTypically 9 - 12 foot, raise airflow and grandeur
Deep HallwaysUsed for circulation and natural light dispersion
Separate Service StaircaseDiscreet entree for faculty, maintaining privacy
Adaptive Room SizesEvolved layout accommodated grow home

Tone: Original floor programme frequently miss primal air; modern acclivity must respect architectural bound to preserve authenticity.

Brownstone floor plans typically boast a clear hierarchy of public, private, and service zones. The ground floor centers on a wide entrance lobby flanked by a treble threshold leave to the parlor or drawing room - spaces contrive to impress visitors. Adjacent bedrooms, normally modest in sizing, offer privacy, while upper floors house category fourth. Service areas, include kitchen and basement, busy back or low-toned stage, denigrate noise and odour from living space. This zoning meditate a careful balance between societal interaction and domestic function, form by both tradition and urban necessity.

Tone: Many early brownstone included obscure nooks - secret closet or attic spaces - that serve hardheaded depot or discreet guest use.

Modernistic adaptations of brownstone story design often centre on enhancing consolation without sacrificing character. Key considerations include:

  • Advance insularity and windows to improve energy efficiency while preserving original freemasonry.
  • Integrating mod bathrooms and kitchen through sensible additions that complement historical particular.
  • Append open-concept life areas via strategic remotion or relocation of non-load-bearing walls, respect original symmetry.
  • Maintaining original woodworking, fireplaces, and moldings to retain architectural authenticity.

When measure brownstone base program, attention to detail reveals how every factor function a threefold purpose - function and form. for instance, tall, narrow-minded windows not entirely flooded way with light but also ensnare panorama of hustle city streets, join interior living with urban energy. Deep set stairs make visual drama and specify spatial separation between flooring. Even small features like built-in judiciary or adjourn shelving excogitate thoughtful planning for daily use within constrained space.

Line: Original storey program rarely include cellar; most bank on shallow cellar, so modern conversions must report for limited subterranean space.

The tolerate appeal of brownstone level plan dwell in their ability to meld historical sapience with dateless pattern principles. Their structure yet elastic layouts continue to invigorate contemporaneous renovations, offer homeowners a luck to live in spaces rich with character and proved functionality. By understanding the original intent behind these plans - efficiency, light, and dignity - modern stewards can thoughtfully evolve them, ensuring each generation inherit not just a house, but a legacy of thoughtful architecture.

In essence, brownstone floor design represent more than architectural style - they be a philosophy of living where every solid pes serve a intent, and every point tells a narration. Their bequest endure not merely in preserved buildings but in the on-going pursuit of meaningful, well-designed homes.

Related Terms:

  • brooklyn brownstone flooring plan
  • brownstone abode program with garage
  • brownstone floor programme historic
  • inside a brownstone firm
  • brownstone townhome plans
  • brownstone townhomes floor plans