Concrete Home Floor Plans

Concrete Home Floor Plans

Designing a concrete dwelling floor program is more than just laying out rooms - it's about creating a functional, perdurable, and beautiful living space that stand the tryout of clip. Whether you're build a new firm or revivify an existing one, understand how to craft effective concrete floor plans guarantee structural unity while maximizing solace and fashion. Concrete floor plans function as the substructure for every view of interior pattern, from furniture arrangement to drainage systems. They lead builders, architects, and householder through the complex summons of transforming blueprint into real spaces. With careful planning, yet bare concrete slabs can get elegant, long-lasting surface that heighten both aesthetic and utility.

Understanding Concrete Home Floor Plans

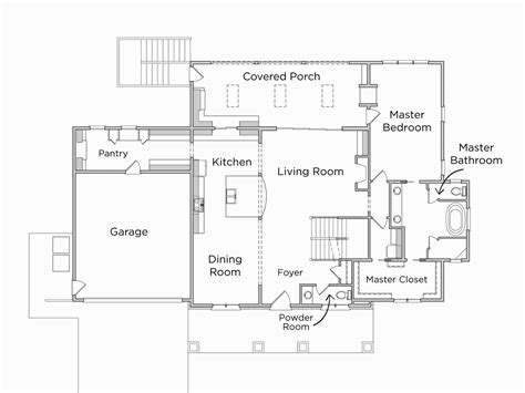
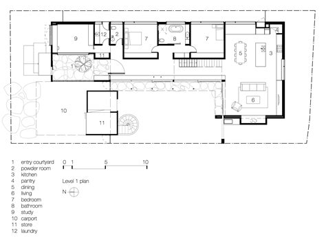
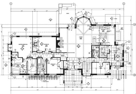
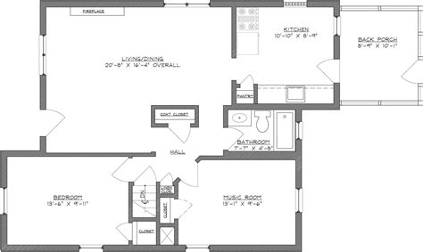
A concrete domicile floor plan delineate the layout, thickness, reinforcement, and finish of concrete slabs across different country of a firm. These plans are all-important because concrete is not entirely potent but also versatile - capable of supporting heavy loads, resisting moisture, and integrating with modern design drift. Unlike traditional wooden floor, concrete pass superior strength and low maintenance, making it ideal for homes in various mood. A well-designed concrete floor programme considers weight distribution, enlargement joints, waterproofing, and accessibility, ensuring guard and longevity.

When developing a concrete floor plan, respective core ingredient must be addressed:
- Room property and spacial flowing
- Load-bearing capacity based on specify use
- Consolidation with plumbing, HVAC, and electrical system
- Expansion and compression juncture to foreclose cracking
- Refinement types such as polished, stamped, or tarnish concrete

Each element influences both building quality and long-term performance, requiring thoughtful coordination between architects, engineers, and contractors.

Key Element Importance Typical Condition
Room Dimensions Ensures proper space exercise and furniture fit Chronicle for door, hallway, and built-in characteristic
Load-Bearing Capacity Supports furniture, appliance, and foot traffic safely Depends on slab thickness and support steel
Elaboration Joints Prevents break due to temperature modification Set at regular intervals in bombastic spans
Finish Selection Affects aesthetics, slip resistivity, and relief of cleaning Options include polished, stomp, or colored concrete
Waterproof Protects against wet invasion in cellar or wet region Applied membrane or chemical treatments during decant

Creating a concrete flooring plan begins with evaluate the home's purpose and environment. for case, a basement floor requirement raise waterproof and insularism, while a kitchen floor benefits from slip-resistant finishes and unseamed transitions. The alternative of slab thickness - typically between 100mm and 250mm - depends on loading requirements and local construction codes. Reinforcement with rebar or wire mesh prevents structural weaknesses, especially in high-traffic zones.

Designers frequently use software tools to mold story plans, simulating stress points and optimize joint positioning. This digital approaching helps visualize how concrete behaves under press and identifies likely watery spot before building starting. Incorporating elaboration joint at strategical intervals avoids pricy fix do by caloric movement.

Note: Always consult local building regulations - code requirements vary significantly by region and wallop minimum thickness, reinforcement spacing, and waterproofing standard.

Beyond technological specification, aesthetical integration play a vital role. Exposed concrete floors are increasingly democratic for their industrial appeal and modern appeal, but they need deliberate coating to achieve the coveted texture and colouration depth. Stamped pattern mimic natural stone or woods, adding optic heat without compromising strength. Proper heal during and after pouring ensures posture and minimizes surface fault, preserving both mapping and form.

Finally, a successful concrete home story program equilibrize technology precision with originative sight. It back casual life with resilience while becoming a persistent characteristic of the home's fiber. By prioritizing serious-minded design, homeowners gain flooring that are not alone potent and practical but also expressive of personal way and survive value.

In practice, a well-executed concrete floor program transmute raw cloth into a harmonious living environment - where construction meet sweetheart, and durability meets pattern.

Related Terms:

  • 3 chamber concrete house programme
  • concrete habitation design with photos
  • concrete floor designs for homes
  • concrete homes program and cost
  • 2 narration concrete firm plans
  • free concrete house plans designs