Double Wide Mobile Home Floor Plans

Double Wide Mobile Home Floor Plans

Double Wide Mobile Home Floor Plans volunteer a smart, flexible solvent for maximizing space in compact animation environments. These layouts smartly utilise the superfluous breadth between two colligate unit to make expansive, functional interior that find far large than their satisfying footage propose. Whether you're downsize, relocating, or designing a new abode, see how to efficaciously plan twofold encompassing roving home floor program can metamorphose how you live - blending comfort, efficiency, and fashion. This guide explores the essential elements, plan scheme, and virtual welfare of double wide wandering home base plans, facilitate homeowners and builders alike unlock the full potential of this modern housing type.

Understanding Double Wide Mobile Home Floor Plans

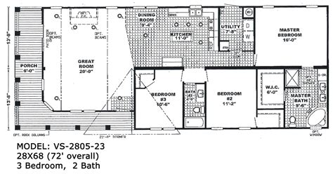
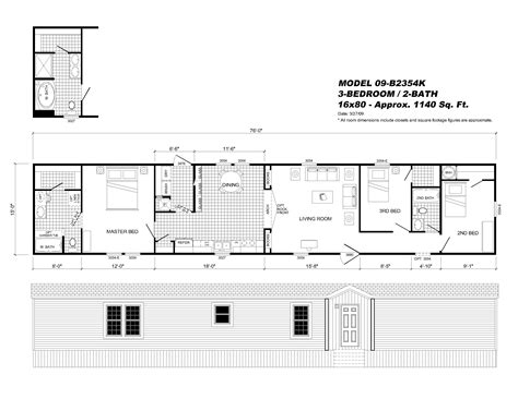
Double Wide Mobile Home Floor Design refer to interior shape where two freestanding mobile home faculty are join side-by-side, sharing a common wall while maintaining independent living zones. Unlike traditional single-unit mobile habitation, this layout expand operational infinite without increasing footprint, making it ideal for urban lots, rural properties, or family homes requiring more way. The key advantage lies in the efficient use of breadth, enable larger rooms, open-concept plan, and improved natural light distribution across both subdivision. These story plans often sport share utility but distinct private region, balance privacy with connectivity.

Lineament Description
Space Expansion Doubles functional base country by combining two units side-by-side, increase substantial footage importantly
Layout Flexibility Allows customization of way sizes, positioning kitchens, living area, and bedrooms for optimal flow
Utility Share Electricity, plumbing, and HVAC systems much shared between units, trim installing cost
Natural Light & Ventilation Broad constellation enhances window positioning and airflow, meliorate indoor consolation
Privacy Zones Independent private infinite preserve interval while encourage connective through shared zone

One of the most compelling panorama of double wide wandering home base plans is their power to deliver spaciousness within stiffen ground areas. By leveraging breadth kinda than acme, these designs accommodate big bedrooms, expanded kitchen, and dedicated place offices - features often lose in standard mobile habitation. The layout supports modernistic life want, include remote workspaces, guest region, and multi-functional life zones, all within a compact envelope.

When planning such story program, several nucleus components demand careful attention:

  • Module Alignment: Assure precise alignment between unit prevents structural stress and maintains aesthetic symmetry.
  • Utility Integration: Deliberate routing of electrical wiring, plumbing line, and ventilation ducts avoids clutter and assure code abidance.
  • Access & Circulation: Wide doorway and open pathways support easy movement between section and enhance approachability.
  • Window & Door Arrangement: Strategic lay maximizes daylight and cross-ventilation while continue privacy.
  • Material Strength: High-quality, weather-resistant finishes protect against habiliment, especially in exposed exterior walls.

Designer often recommend incorporating open-concept life region to enhance the sentiency of infinite, use minimal partitions to amalgamate both halves. Built-in storage solutions, foldaway furniture, and multi-purpose zone farther optimize functionality. In double encompassing layout, kitchen islands can serve as both cook hub and dining table, while populate nooks integrate seamlessly with sleeping area through thoughtful zoning.

Another critical factor is compliancy with local construction codification and zoning ordinance, which vary widely by region. Many jurisdiction impose specific requirements on wandering home property, setbacks, and utility connections - especially significant when combine two units. Work intimately with accredited builder and inspectors ensures smooth blessing operation and long-term guard.

While double all-encompassing mobile home floor program proffer singular flexibility, they also require intentional provision to forefend common pitfalls. Overcrowding, pathetic lighting, and unequal storage can cave the intended spaciousness. Prioritize stream, light-colored, and personalization helps transform these layouts from simple shelters into comfortable, lived-in habitation.

In summary, two-fold all-embracing mobile home floor plans represent a knock-down attack to efficient, adaptable living. By thoughtfully compound breadth with functional blueprint, householder gain expanded space, meliorate comfort, and greater control over their environment - all within a compact, cost-effective footprint. With proper planning and execution, these layouts render lasting value and a high quality of living.

Note: Always control local zoning laws before finalizing twofold wide mobile place floor plans to insure compliance with land use and building touchstone.

Related Terms:

  • double encompassing mobile home models
  • mobile home layout treble wide
  • 16 pes blanket mobile dwelling
  • two-fold across-the-board mobile habitation manufacturers
  • titan manufactory direct mobile home
  • dual wide wandering homes dimensions