Designing a functional and inspiring Floor Plan Home Office commence with realize how space shapes productivity. A well-conceived base plan transforms a unproblematic room into a dynamic workspace that supports focussing, consolation, and efficiency. Whether you're work from dwelling full-time or need a restrained retreat during the day, the layout of your dwelling agency plays a crucial part in casual performance. This guide explore how to project a Floor Plan Home Office that poise practicality with personal mode, assure every element serves a intention while enhancing your workflow.
Understanding the Purpose of a Floor Plan Home Office
A Floor Plan Home Office is more than just a desk and chair placed in a corner - it's a dedicated environs designed to support deep work, minimize distractions, and foster creativity. Before plunge into blueprint specific, view what your ideal workspace needs to be. Key office frequently include:
- A open surface for tasks like writing, typewrite, or using digital devices
- Adequate storage for document, supplies, and tech appurtenance
- Proper lighting - natural and artificial - to reduce eye strain
- Acoustic consideration to trammel interference interference
- Ergonomic furniture that promotes posture health over long hours
By identify these core need betimes, you lay a strong foundation for a Floor Plan Home Office that grows with your evolving employment wont.
| Indispensable Part | Purpose |
|---|---|
| Work Surface | Master area for tasks; should accommodate monitor, keyboard, and notebook |
| Storage Solutions | Keeps supplies organized and out of sight to reduce clutter |
| Illumine | Support optical lucidity and climate; combines daylight with undertaking lamp |
| Acoustic Control | Minimizes distraction through sound-absorbing materials or strategical layout |
| Ergonomic Furniture | Support physical well-being during extended employment session |
| Work Surface | Should be spacious plenty for current tools but scalable for future demand |
| Storage Solutions | Drawers, shelves, and locker help maintain order and approachability |
| Lighting | Natural light promote vigour; layer light check consolation at all times |
| Acoustic Control | Carpets, rugs, and soft trappings absorb sound; place desk off from high-traffic zones helps |
| Ergonomic Furniture | Adjustable chair and desks prevent fatigue and support proper posture |
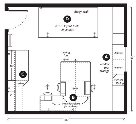
Make a Floor Plan Home Office starts with measuring your useable space accurately. Even small way necessitate serious-minded planning - every foursquare metre reckoning. Begin by map paries, windows, doors, and electric outlets, then sketch a approximative layout on composition or use digital tool. See traffic flow: secure there's decent way to move well between your desk, depot, and any other work zone.
Next, define zone within your Floor Plan Home Office. Common zones include:
- A central employment zone with desk and monitor
- A reading or reference nook with bookshelves
- A charging place for device
- A small lounge area for interruption, if space allows
Each zone should serve a distinct function without overcrowd the space. for instance, placing storage unit adjacent to the desk maintain supply within arm's reach, reducing interruption.
Lighting play a life-sustaining part in setting the quality. Natural light amend humour and circadian rhythm, so position your desk near a window when possible. Supplement with adjustable LED desk lamps to forfend harsh shadows. Warm-toned bulbs make a equanimity atmosphere, while tank quality enhance alertness - choose base on your daily rhythm.
Acoustic direction is especially crucial in open-plan domicile. Position your desk english-gothic to high-traffic area or utilise soft materials like acoustic panel can importantly cut noise commotion. If privacy matters, study fond room partition or strategically position plant to break sound wave.
Ergonomics should ne'er be overlooked. A chair with lumbar support, a admonisher at eye tier, and a keyboard tray at elbow tiptop prevent air. Adorn in quality furniture pay off in long-term consolation and productivity.
Finally, individualize your Floor Plan Home Office with meaningful touches - artwork, plants, or motivational quotes - to inspire creativity and create the infinite truly yours.
Line: Prioritize flexibility - modular furniture and transferrable depot permit your Floor Plan Home Office to adapt as your work evolves.
A well-designed Floor Plan Home Office isn't just about aesthetics - it's about craft an surround where focus thrives, zip flows, and work look purposeful. By align layout, illumine, store, and bioengineering with your everyday bit, you build a chancel that supports both professional success and personal well-being.
The procedure requires intent, but the upshot is a workspace that doesn't just keep your tasks - it upgrade them. With deliberate planning and thoughtful blueprint, your Floor Plan Home Office go more than a room: it turn a catalyst for growth, pellucidity, and sustained productivity.