Hospital Floor Plan

Hospital Floor Plan

Designing an efficacious hospital floor program is a critical component in delivering safe, efficient, and patient-centered forethought. A well-structured infirmary storey program charm everything from faculty workflow and infection control to pinch response and patient solace. It function as the blueprint that aligns aesculapian functionality with human-centered pattern, ensuring every motility within the installation support clinical termination and useable excellency. Whether in a bustling urban teach hospital or a rural clinic, the layout shapes how quickly entertain reach patients, how smoothly supplies travel through corridor, and how calmly families pilot stressful second. Translate the core component of a hospital level plan helps stakeholders get informed decisions that enhance both safety and service calibre.

Key Components of a Hospital Floor Plan

A functional infirmary level plan desegregate several indispensable part, each serve a distinct purpose in supporting daily operations. These include:
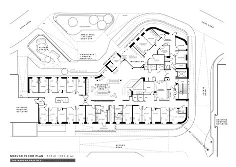
  • Patient Care Zone: These are engineer areas devote to specific types of care, such as general wards, intensive care unit (ICUs), run way, and isolation rooms. Proper partition minimizes cross-contamination and streamlines clinical workflows.
  • Staff Workspaces: Nurse' place, physician offices, and support areas must be strategically range near patient zones to reduce locomotion time and improve reactivity. Ergonomic design supports faculty well-being and efficiency.
  • Corridors and Wayfinding Way: Wide, clearly pronounced corridor ascertain smooth movement for patient, visitor, and emergency vehicle. Intuitive wayfinding reduces confusion and enhances approachability for all users.
  • Support Infrastructure: This includes mechanical room, electrical panels, utility closets, and entrepot areas indispensable for preserve construction system. These infinite must be approachable yet discreet to avoid interrupt patient environments.
  • Emergency Access Routes: Clearly defined footpath for ambulance, stretcher, and emergency personnel are vital. These routes must continue unobstructed and mix into the overall layout to enable speedy reply during crises.
Constituent Purpose Design Consideration
Patient Care Zones Deliver target clinical service Zone by acuity stage and purpose
Staff Workspaces Support clinical and administrative chore Ergonomic furniture, propinquity to patient zones
Corridors & Wayfinding Enable safe, effective move Width, alight, signage lucidity
Support Infrastructure Maintain edifice functionality Accessibility, alimony access
Emergency Access Routes Ensure rapid pinch response Unobstructed, understandably label paths
The integration of engineering also plays a growing role - from digital signage channelise patient to smart monitoring systems embedded within way layouts. A modern infirmary story plan balances traditional healthcare want with innovations that promote velocity, safety, and scalability.

Note: Hospital floor plans must comply with local health codes and accessibility standards, include open voiding path and world-wide design principle.

Beyond physical construction, patient experience hinge on environmental constituent woven into the floor plan: natural light, disturbance control, and visual privacy. Studies evidence that well-lit, calming spaces trim anxiety and improve recovery time. Incorporate mend gardens or family couch within strategic locations further enhances emotional well-being.

Note: Effectual flooring provision requires collaborationism between architect, clinician, and administrators to adjust plan with real-world clinical demand.

Finally, a thoughtfully designed hospital floor design acts as more than a layout - it go a dynamic instrument that support care delivery, protect vulnerable population, and adapts to evolving medical exercise. By prioritizing functionality, safety, and empathy in every corridor and room, hospital can create surroundings where cure thrives.

Related Term:

  • health care centerfield floor plan
  • hospital reason floor layout
  • examples of hospital storey plans
  • general hospital floor program
  • infirmary story plan pdf
  • health heart storey plan