Kitchen Floor Plans With Dimensions

Kitchen Floor Plans With Dimensions

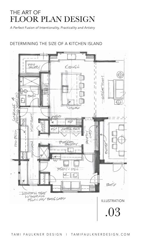
Planning a functional and beautiful kitchen begin with well-designed story plans that incorporate accurate kitchen floor programme with property. These elaborated layout assure every in serve a purpose - from storage and workflow to consolation and esthetic. Whether you're animate an existing space or project a new abode, understanding how to integrate exact measure into your kitchen floor program is crucial. Proper dimensions guide furniture position, optimize traffic flow, and help choose suitably sized appliances and countertops. A thoughtfully crafted kitchen storey design with open mensuration transforms a chaotic infinite into an effective, inviting surround where daily tasks become effortless.

Understanding Kitchen Floor Plans With Dimensions

A kitchen floor programme with dimensions is more than just a blueprint - it's the foundation of a well-organized cooking infinite. These plans map out every factor, include countertops, cabinet, sinks, range, and contrivance, all scaled to real-world measurements. Including exact dimensions allows homeowners and designers to figure spatial relationships, debar costly mistake, and maximise utility. Key components typically featured include:
- Countertop duration and width
- Cabinet tiptop and depth
- Sinkhole and stave clearance
- Traffic lanes between major fixity
- Storage zone allocations

Use standardized units such as centimeters or inches secure eubstance across all elements, making coordination with builders seamless. When attribute are clearly defined, yet complex layouts remain realizable and practical.

Constituent Distinctive Dimension Range
Countertop120 - 180 cm wide × 60 - 90 cm trench
Cabinet Base45 - 50 cm deep × 30 - 40 cm eminent
Sink60 - 75 cm diameter (beat) or 90×60 cm (rectangular)
Stove60 - 70 cm wide × 60 cm deep
Work Triangle (sinkhole, fridge, stove)1.2 - 2.4 meters between key zones

Heedful attention to these measurements prevents overcrowd and supports ergonomic move. for representative, conserve at least 90 cm headroom between the range and adjacent cabinetry permit safe accession and ventilation. Similarly, ensuring the work triangulum proportionality efficiency and solace enhances daily usability.

Note: Always mensurate twice before finalizing - small errors in dimensions can lead to major initiation issues.

When drafting kitchen floor programme with dimensions, consider workflow zones: preparation near the sinkhole, ready concentrate around the stove, and cleaning near the dishwasher or sink. Adjust these zones with exact measurements creates nonrational spaces that support natural motion practice.

Note: Use coherent unit measurements throughout - mixing metrical and imperial can cause discombobulation during expression.

Beyond functionality, kitchen floor plans with dimension also influence aesthetical choices. Proper grading helps determine tile layout shape, backsplash sizing, and lighting habitue placement. For instance, a 120 cm wide countertop couple with 60 cm deep cabinets create optical harmony when matched with complementary tile form and wall finishes.

Finally, incorporate precise kitchen floor plans with property transforms abstract idea into touchable world. It endow householder to create informed conclusion, collaborate efficaciously with declarer, and enjoy a kitchen that flux beauty with practicality for years to come.

In exercise, successful kitchen floor planning take balancing spatial logic with personal lifestyle want. Whether prioritizing open-concept stream, plentiful depot, or compact efficiency, every measure contributes to a cohesive designing. By treating attribute as more than numbers - seeing them as instrument that figure experience - you lay the groundwork for a kitchen that really work for you.

Related Terms:

  • kitchen locker layout with attribute
  • standard kitchen storey programme attribute
  • kitchen layout standard dimensions
  • kitchen layout drawing with dimensions
  • kitchen plan dimensions in in
  • kitchen layout with dimensions