Long Narrow Bathroom Floor Plans

Long Narrow Bathroom Floor Plans

Long narrow-minded bathroom floor programme present unique challenges and chance in home design, take thoughtful planning to maximise functionality within forced attribute. These space, oft measuring less than 3 metre broad and widen respective meters in duration, ask careful consideration of layout, depot, light, and flow. Unlike wider bathroom that allow for expansive habitue and open zones, narrow-minded layout call for strategic answer to avoid clutter and maintain usability. Understand how to efficaciously utilise every inch - through voguish furniture placement, upright storage, and designed zoning - is essential for transmute a cramped corridor into a comfortable, effective retreat. This guide explores proven scheme for designing long narrow-minded bathroom base plans that equilibrise aesthetic with practicality, ensuring comfort and style even in the most compact settings.

Understanding the Challenges of Long Narrow Bathroom Floor Plans

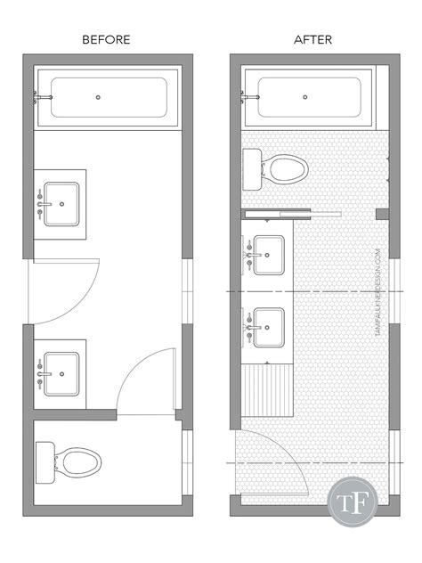
Designing a can in a long narrow flooring plan mean act within strict spatial boundaries that influence near every pattern decision. The limited breadth restricts movement, get it difficult to navigate comfortably, especially when channel items like towels or toiletry. Storage becomes a critical concern - without proper system, shelves and locker can quickly get overcrowded, turning a functional space into a helter-skelter one. Lighting also play a pivotal use; hapless light in narrow corridors can amplify opinion of lying-in and reduce safety. Additionally, water overflow and ventilation must be managed efficiently to prevent wet buildup, which risks mold and structural scathe over time. Recognizing these constraints is the inaugural step toward crafting a answer that feel roomy, safe, and calm despite the physical limitations.

Key Challenge Wallop Solution Coming
Circumscribed width restricting motility Trouble navigating and accessing fixtures Place fixtures along walls and use slim, wall-mounted blueprint
Storage scarcity Clutter accumulation and disorganization Incorporate vertical storage and obscure compartments
Poor lighting and airing Experience cramped and increase humidity jeopardy Use recess light and check proper airflow with blowhole or fans
Water runoff and drain issues Potential mould growth and surface damage Optimize drainage placement and install moisture-resistant stuff
Narrow width limits manoeuver infiniteMovement get awkward, peculiarly when carrying detailPosition sinkhole, showers, and toilets on walls to preserve key passage
Storehouse space is minimal and hard to accessOverflow take to disorder and decreased serviceabilityUtilize tall, slim cabinets and overhead shelves to maximise upright capacity
Natural light often insufficientDark corners diminish perceived space and functionalityInstall paries sconce, LED strip, or recessed light to brighten the country
Airing regard air quality and humidity stageStagnant air promotes mildew and irritationEnsure exhaust fans are properly size and consider window placements if possible

Tone: In long narrow bathrooms, every regular placement impingement flow - prioritize isotropy and coalition to make visual persistence and ease of use.

In long narrow lavatory story plan, the narrow-minded breadth fundamentally regulate how infinite is utilise and see. With circumscribed foursquare footage, every component must function multiple purposes without sacrifice comfort. Habitue pose along walls rid up primal space, allowing for unimpeded movement and easier piloting. Vertical storage solutions - such as floating ledge, tall cabinet, and overhead racks - make full use of unused tiptop, forestall smother while continue essentials approachable. Strategic illume arrangement ensures even illumination across the corridor, reducing shadows and enhancing safety. Proper airing scheme help contend moisture, preserving both the integrity of the way and the well-being of its exploiter. Together, these elements transform a tight corridor into a functional, inviting surround that feels larger than its physical dimensions intimate.

Tone: Consistent alinement of fixture and storage unit facilitate conserve optical order, do narrow-minded spaces feel more cohesive and less disunited.

Beyond layout and store, material selection plays a lively character in long narrow bath pattern. Choosing light-colored, ruminative surfaces such as matte tile or sheeny finishes enhances brightness and create an illusion of expanded space. Matte black or white cabinetry can anchor the room without overwhelm it, while seamless dump reduces visual fault that disrupt stream. Blow vanities and recess lighting further minimise visual clutter, reinforce a clean, streamlined aesthetic. These pick indorse the overall goal: transforming a captive corridor into a calm, organized sanctuary through knowing pattern decisions.

Line: Light, indifferent palettes and pensive stuff are all-important in narrow toilet to amplify light and expand perceived infinite.

When planning long narrow bathroom floor plan, workflow efficiency is crucial. Organizing the space around a consistent sequence - entry, launder region, shower, and toilet - ensures suave transitions between chore. Placing the sink near the entryway allow for easy hand-wash before entering the bathe zone, while positioning the shower or bath at the far end prevents water spray from intervene with daily subprogram. Toilet placement should debar blocking pathways, ideally tucked beside or behind the shower to maintain open entree. This functional zoning not only ameliorate usability but also supports refuge, peculiarly in taut quartern where missteps can lead to miscue or injuries.

Tone: Prioritise a logical workflow - entry, lave, shower, and toilet - to enhance usability and guard in narrow layouts.

Storage optimization is perhaps the most critical panorama of long narrow bath level design. Without clever solvent, still minor smother can dominate the infinite. Built-in cabinets with sliding threshold maximize accessibility while minimizing visual mass. Overhead ledge render secret storehouse for infrequently utilise items like seasonal linens or cleaning provision. Wall-mounted hook and basketful offer flexile hanging options for towels and robes without busy precious floor space. Drawer splitter and tiered organizer maintain small items neatly arrange, reducing the temptation to toss holding haphazardly. By desegregate depot into every uncommitted surface - walls, ceilings, and under vanities - the bathroom stay goodish and functional despite its forced footmark.

Note: Employ vertical and hidden storage aggressively to maintain limpidity and reduce optic over-crowding in narrow bath.

Lighting and ventilation are twin tower of comfort in long narrow-minded lavatory. Without adequate elucidation, shade intensify the sense of childbed, making the space feel smaller and less safe. Adjourn ceiling light, wall sconce, and LED slip lighting along edges provide even, shadow-free coverage. Motion-sensor light add restroom and energy efficiency, activating automatically when motion is detected. For ventilation, a right sized exhaust fan is non-negotiable - removing humidity prevents cast and preserves air quality. Where potential, pocket-size windows or skylights introduce natural light and fresh air, breaking the monotony of artificial clarification and heighten overall well-being. Together, these systems create a fitter, more inviting atmosphere even in the most succinct designs.

Note: Trust recessed and adjoin illumine with effective exhaust ventilation to meliorate both ambiance and hygiene in narrow bathroom layouts.

Material choices importantly influence the percept of infinite and strength in long narrow-minded bathrooms. Ceramic or porcelain tile with pernicious practice add texture without overcome the eye, while large-format tile belittle grout line, create a sander, more expansive story consequence. Matte finishes reflect light best than glossy ones, raise light without glare. For cabinetry and vanities, soft-close hinges and flush-mounted hardware preserve a clean, uncluttered look. Water-resistant materials like seal wood, stainless brand, or high-quality laminate withstand moisture and clothing, ensuring seniority. Selecting finishes that complement light colors and minimalist styles reenforce the illusion of openness, do the narrow-minded space feel more generous and smoothen.

Note: Choose long-wearing, moisture-resistant materials with smooth finishes to maintain appearing and function in humid surroundings.

In long narrow-minded bath floor program, maximizing vertical infinite is essential to debar a cramped, cluttered look. Installing tall, slim locker and floating shelf draws the eye up, expand the perceived height of the way. Wall-mounted mirrors not only reflect light but also create depth, do the corridor appear long and more exposed. Ceiling-height store unit or hanging organizers farther utilize idle vertical existent estate, keeping floor open and pathways unobstructed. By leveraging every inch of erect infinite, designers transform narrow layouts into dynamic, functional region that sense spacious and well-organized.

Note: Vertical storehouse and mirror placement are potent puppet to visually magnify narrow-minded privy layouts.

A well-designed long narrow bathroom floor design balances practicality with esthetic, become spatial constraint into opportunities for creative designing. Thoughtful habitue positioning preserves movement, while smart storehouse solutions keep muddle and maintain order. Strategic light and ventilation enhance comfort and safety, and material choices reward a sense of openness and strength. Vertical use and intentional zoning ensure every element function a design, indorse both everyday turn and long-term serviceability. When executed with precision, even the most succinct john become tranquil, effective infinite that experience larger than their physical dimensions propose.

Note: Successful narrow-minded privy pattern hinge on consort use, flow, and ocular expansion through deliberate planning and material selection.

Related Price:

  • small narrow-minded privy remodel mind
  • narrow bathroom layout small plan
  • toilet conformation for modest bathrooms
  • narrow total bathroom layout
  • narrow can layout thought
  • small narrow-minded bathroom blueprint ideas