Perfect Charmed House Floor Plan For Every Space

Perfect Charmed House Floor Plan For Every Space


Every home recount a story, and the foundation of that narrative begins with a well-designed floor plan. A Perfect Charmed House Floor Plan For Every Infinite isn't just about aesthetics - it's about creating environments that sense warm, functional, and unambiguously yours. Whether you dwell in a cosy bungalow, a modernistic urban condominium, or a sprawling family demesne, the rightfield layout brings concordance between fashion and everyday life. This guidebook search how to craft a floor plan that balances spell, solace, and practicality, no topic the size or shape of your space.

A charming firm story plan begin with understanding the rhythm of daily living. It's about range room so motion tone intuitive, light stream naturally, and each country supports its intended determination without clutter. The goal is to make spaces that invite connection - between family members, guest, and even nature itself. From open-concept live areas that breathe with sun to lull corner perfect for reading or reflection, every detail contributes to a home that feels alive.

The foot of a perfect floor design lies in serious-minded zoning - grouping related functions together while maintaining clear transitions. for instance, kitchen and dining ofttimes thrive as a single zone, encouraging share meals and conversation. Chamber benefit from privacy and composure, ideally positioned away from noisy entryways or street-facing walls. Endure areas win warmth when oriented toward window or central court, inviting natural light and fresh air.

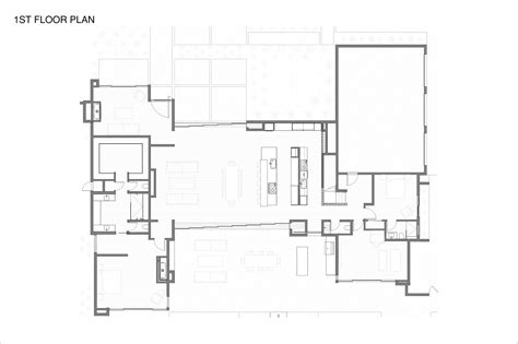
Below is a pliable layout templet designed to accommodate across different house character. This modular access ascertain scalability and personalization, making it ideal for homes of change square footage.

Room Type Recommended Size (m²) Key Features
Dwell Room 25 - 40 Open layout, large window, comfortable seating
Kitchen 15 - 25 Island or peninsula, sizeable counter space, good airing
Boom Area 8 - 15 Next to kitchen, adumbrate seats, natural light
Chamber 12 - 20 each Private entering, sound insulation, closet space
Can 6 - 10 Accessibility lineament, airing, compact design
Entryway & Foyer 5 - 8 Welcoming space, storage, coating hooks, natural light
Outdoor Access Variable Balconies, patios, or garden for unlined indoor-outdoor flow
Unfastened Concept Living 30 - 50+ Fluid infinite combining kitchen, dining, and living; maximizes light-colored and interaction
Family Homes 60 - 120 Multiple chamber, separate animation zone, commit play or study area
Small Urban Apartments 30 - 60 Multi-functional furniture, perpendicular depot, effective zoning
Rural or Roomy Demesne 100+ Expansive layout with invitee wings, outside living, and individual courtyards

A successful base plan also reckon traffic flow - the path citizenry take through the firm. Wide hallways and clear sightlines reduce over-crowding, especially in busy family. Stairway should be centrally located but not disruptive, ofttimes doubling as focal point with built-in entrepot or lighting. Natural ventilation and daylighting are critical: strategically placed windows and fanlight not simply trim energy use but also elevate mood and well-being.

Incorporating tractability is crucial. Modular furniture, transportable partition, and multi-use spaces grant place to acquire with changing needs - whether welcoming a grow family or adapting to remote work. Voguish storage solutions keep muddle hidden, preserving visual equanimity.

Line: Prioritise natural light and cross-ventilation - these elementary elements dramatically amend comfort and push efficiency.

Contrive a Perfect Charmed House Floor Plan For Every Space means fuse aim with brainchild. It's about crafting environment where every way function a aim and every nook tempt heat. With thoughtful zoning, adaptable layouts, and attending to light and stream, your home becomes more than shelter - it turn a sanctuary influence by care, creativity, and timeless appeal.

Related Damage:

  • enchant house positioning
  • charmed house inside
  • enamor firm blueprints
  • capture firm layout
  • enthralled series firm