Perfect Fallingwater Floor Plans For Home Style

Perfect Fallingwater Floor Plans For Home Style

Nestled among predominate trees and cradled by soft streams, a home designed with Perfect Fallingwater Floor Plans For Home Style become more than shelter - it transforms into a living concordance between nature and architecture. These storey design delineate brainchild from the iconic Fallingwater residence, blending organic kind, unfastened infinite, and seamless integration with the landscape. Whether you're delineate to the timeless elegance or the functional sweetheart of modern rendition, crafting a habitation that ring this philosophy intend poise aesthetic grace with practical living. This guidebook search how to achieve that proportion through thoughtful design, prioritizing flow, light-colored, and connecter to the outdoors - all while respect the nucleus principles behind the perfect Fallingwater-inspired flooring design.

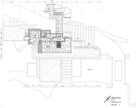
Understanding the Essence of Perfect Fallingwater Floor Plans

At the heart of Perfect Fallingwater Floor Plans For Home Style dwell a deep respect for nature's round and human comfort. These designs emphasize horizontal line that mirror the roll terrain, turgid area of glass that obscure indoor-outdoor boundary, and open layouts that encourage movement and interaction. The goal is not mere imitation but adaptation - translating Frank Lloyd Wright's sight into homes that suit contemporaneous lifestyles while preserve the someone of the original construct. Key elements include:
- Horizontal emphasis that reverberate the horizontal sweep of rock and water
- Floor-to-ceiling windows entrap sweeping views and natural light
- Open-plan animation fostering connection between way and nature
- Natural materials such as stone, woods, and concrete that age gracefully
- Integrated bench and cantilevers that extend dwell space into the landscape

These rule make environments where every way feels designed, wide, and animated.

Core Component Purpose & Benefit
Horizontal Line Reflects terrain and horizon, create calm visual continuity
Large Glazing Areas Maximizes natural light and panoramic views, enhancing well-being
Open Living Spaces Encourages category interaction and fluid move between zones
Natural Material Palette Provides warmth, strength, and dateless ravisher
Cantilevered Bench Extends living country into nature, deepen connection to surroundings
Organic ConsolidationDesigns respond to topography rather than predominate it, minimize environmental impingement
Multi-Functional ZonesSpaces serve dual purposes - dining and assembly in one area, employment and relaxation in another
Chic Storage SolutionsHidden storage preserve clean line and maintains optical placidity

Select the correct storey programme is the foundation of a place that experience effortlessly perfect. It's not just about satisfying footage or aesthetics - it's about how space indorse daily living, invite peace, and celebrates the peach of the natural world. A well-designed Fallingwater-inspired layout turn every bit into a quiet moment of connection - whether sipping forenoon coffee by a floor-to-ceiling window or walk barefooted across a sunlit bench. These plans prove that architecture can be both poetic and hard-nosed, regulate homes that endure across generations.

Note: Prioritize situation orientation - positioning living areas toward the sun and panorama enhances comfort and energy efficiency.

Note: Natural airing and passive solar design reduce reliance on hokey systems, supporting sustainable living.

Tone: Incorporate built-in furniture to maintain clear line and maximise usable infinite without fuddle.

Finally, a Perfect Fallingwater Floor Plan For Home Style is a jubilation of balance - between structure and nature, signifier and map, hush and motility. It invites homeowners to live deep, breathe freely, and find joy in the quiet moment framed by sunlight, stone, and infinite. When thoughtfully executed, such a home doesn't just house people - it nurture them, anchor each day in the timeless beat of earth and light.