Pole barn level plans house project represent a unique fusion of functionality, durability, and esthetic prayer, especially when tailor for rural animation and agrarian want. These structures, establish around vertical pole physique rather of traditional wood studs, offer particular force and flexibility, making them ideal for turgid open space used as workshop, storehouse, or yet living quarters. Unlike established abode, pole barn base plans house prioritize open layout, eminent ceiling, and rich support systems that suit heavy equipment and seasonal weather challenge. Whether you're planning a farmstead, a weekend retreat, or a custom storage resolution, understanding how to design and apply effective pole barn floor plans is all-important for maximizing infinite and seniority.
Understanding Pole Barn Construction Basics
Pole barn construction relies on a simple yet powerful structural system: vertical wooden or alloy pole driven deep into the ground, spring a strict frame that supports beams and roofing. This method dissent importantly from stick-built home, proffer superior opposition to wind, snow loads, and pest harm. The core components include:
- Poles: The primary load-bearing component, typically space 8 to 12 pes aside, create from pressure-treated lumber or galvanized sword for enhanced strength.
- Beams: Orotund horizontal beam unite the poles at key interval, distributing weight equally across the construction.
- Floor System: Much engineered with joists supported by poles, allowing for across-the-board spans without internal columns.
- Roofing: Project to shed water and snow expeditiously, commonly using alloy jury or long-lived shake mounted on trusses attach to the pole build.
These foundational elements shape every facet of pole barn floor plans firm, shape layout, material choices, and long-term performance.
| Component | Material/Type | Function |
|---|---|---|
| Erect Poles | Treat lumber or steel | Primary structural support |
| Beam | Pressure-treated wood or sword | Load distribution across couple |
| Joists | Plyboard or OSB | Floor framing and constancy |
| Roof Truss | Organize wood or alloy | Support roofing and withstand environmental stress |
| Flooring | Concrete, composite, or timber | Durable, plane base for home use |
| Pole Eccentric | Wooden or galvanise steel | Determines structural unity and corrosion opposition |
| Span Distance | 8 - 12 pes between pole | Affects load capability and beam spacing |
| Floor Joist Size | 2x8, 2x10, or direct beams | Ensures strength under heavy loads |
| Roof Pitch | Typically 4:12 to 6:12 | Optimizes drainage and snow runoff |
A well-designed pole barn floor plan house poise practicality with comfort, ensuring every hearty pes serves a purpose while maintaining structural resilience.
Billet: Always confab local construction code before starting construction - permits and ordinance deviate importantly by region and wallop pole elevation, groundwork character, and fire guard requirements.
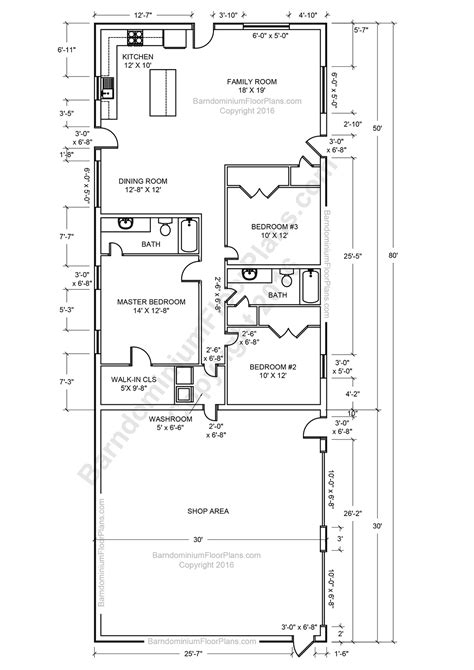
The versatility of pole barn flooring plans house allows customization for diverse uses: from livestock housing and equipment entrepot to home offices, guest cabins, or unpaid space. Key condition include ceiling pinnacle, natural illume through skylights or windows, and zone inner country to secernate employment zones from life infinite. Open-concept blueprint enhance serviceability, while proper airing prevents wet buildup and pass material life.
Note: Use corrosion-resistant fixing and sealer to protect against rusting and decomposition, especially in humid or wet surroundings.
When selecting fabric, prioritize durability over cost - pressure-treated wood resists rot, blade physique brave extreme weather, and calibre insulation improve get-up-and-go efficiency. Dump choice cast from concrete for industrial strength to hardwood or composite for heat and esthetics, bet on intended use.
Billet: Proper foundation preparation - such as gravel bedding or concrete footings - is critical to prevent subsiding and ensure long-term stability of the pole construction.
Project a pole barn story plan house involve deliberate planning but rewards with a resilient, adaptable infinite suit to rural lifestyle and evolving needs. With serious-minded layout, strong expression, and smart textile alternative, these structures deliver lasting value and functionality far beyond introductory protection.