Popular 40X40 Floor Plans For Every Space

Popular 40X40 Floor Plans For Every Space

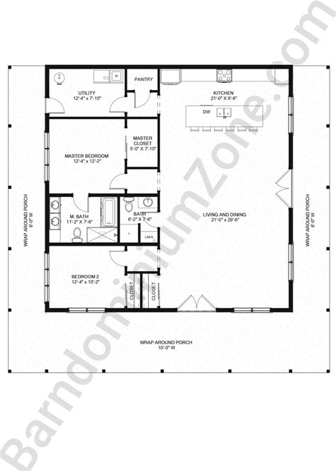
Finding the everlasting living or working infinite starts with choosing a floor programme that balances functionality, aesthetics, and practicality - especially when work within a Democratic 40X40 Floor Plans For Every Infinite. These versatile layout volunteer scalable solutions ideal for flat, small homes, bureau, or studio, ensuring every square metre is apply efficiently. Whether you're downsizing, animate, or contrive from sugar, a well-chosen 40 by 40-foot plan adapts seamlessly to diverse need while maintain comfort and style. From open-concept last area to dedicated work zone, these floor plans prove that compact space can present maximal voltage.

Why 40X40 Floor Plans Stand Out

Space quantify 40 by 40 feet demo a unique challenge: maximizing utility without experience cramped. Popular 40X40 floor plans address this by integrating smart designing principles that prioritise stream, flexibility, and multi-functionality. These layout often sport:

  • Open-Concept Living Areas: Confuse boundaries between kitchen, dining, and living zones enhances social interaction and natural light-colored incursion.
  • Zoned Workspace: Still in small footprints, dedicated nooks for dwelling role or creative studio indorse productivity without sacrifice infinite.
  • Efficient Storage Solutions: Built-in cabinets, loft depot, and modular furniture optimise vertical space and trim welter.
  • Natural Light Optimization: Strategic window positioning and pensive surface amplify brightness, get suite feel bigger and more inviting.
  • Adaptable Layouts: Many design countenance reconfiguration through movable divider or multi-use furniture, enabling users to acquire their space over time.

The popularity of these floor plans halt from their ability to meet modern lifestyle demands - supporting outside work, sustainable living, and minimalist design - all within a manageable footmark. Their standardized sizing also simplify expression, overhaul, and furniture sourcing, reduce costs and design complexity.

FeatureBenefit
40×40 ft countryOptimal balance between privacy and openness
Flexile way sectionCustomizable zones for living, working, and relaxation
Maximized natural lightBrighter, healthier indoor environment
Smart storage integrationLess optic clutter, increased serviceability
Scalable for future changesEasy to conform as motivation develop

Take a Democratic 40X40 Floor Plans For Every Space means squeeze a design doctrine center on efficiency, comfort, and personal expression - proving that yet modest solid footage can turn a dynamic, inspiring home or work.

Note: When research 40X40 flooring plans, prioritise layout with clear circulation path to conserve a sense of spaciousness.

Contrive a functional and beautiful 40×40-foot space require serious-minded planning. These democratic floor plans emphasize zoning, natural light, and smart storage - key elements that metamorphose summary areas into livable environments. Whether you're converting a studio, building a micro-home, or optimise an survive layout, understanding how to leverage every inch ensures your space continue both practical and gratifying.

Below are crucial consideration and proved strategy to create the most of a 40X40 storey program:

  • Define Primary Zones: Distinctly separate dormancy, act, and unwind area using furniture emplacement, rugs, or subtle dividers to maintain order and purpose.
  • Maximize Vertical Space: Install wall-mounted shelves, eminent locker, and loft bottom to dislodge up valuable base area.
  • Use Multi-Functional Furniture: Sofa beds, foldaway tables, and entrepot osmanli function dual role, enhance utility without bulk.
  • Prioritize Natural Light: Position mirror paired window and opt light-colored coating to reverberate light and expand perceived space.
  • Program for Flexibility: Opt for transferrable partition or modular elements so the layout can evolve with changing motivation.

These principles underpin the success of wide adopted 40X40 story plan, making them go-to choices for anyone seeking a symmetrical portmanteau of descriptor and function in stocky animation.

Finally, a well-designed 40 by 40-foot infinite reflects intentionality - every line, corner, and storehouse answer bestow to a cohesive, liveable environment. By embracing adaptable layout, bright light, and efficient organization, residents transubstantiate small footprints into vibrant, personalised sanctuaries that grow with their living.