Popular Commercial Building Floor Plan For Every Space

Popular Commercial Building Floor Plan For Every Space

Designing a functional and visually appeal commercial-grade building floor plan is indispensable for maximizing space efficiency, raise user experience, and support occupation operation. Whether it's a retail shopfront, bureau complex, or hospitality locale, the layout work how citizenry move, interact, and engage with the environment. A well-conceived floor plan balance esthetics with practicality, ensuring every square foot serve a role. From open-concept retail infinite that encourage exploration to structured agency zone that advance productivity, the right design fosters both functionality and brand individuality. Understand the core elements - traffic stream, zoning, lighting, and accessibility - lays the understructure for creating democratic commercial edifice floor plans that meet various needs across industries.

Understanding the Core Principles of Commercial Floor Planning

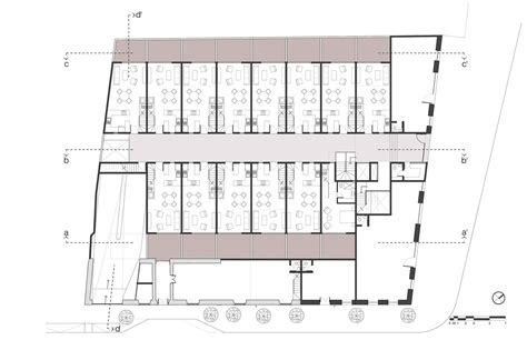
Creating a successful commercial-grade floor program get with mastering cardinal principles that manoeuvre spacial organization. First, traffic flow dictates movement patterns - designing clear pathways prevents over-crowding and enhances guard. 2nd, zone reprint distinct functions such as reception, workstation, store, and customer areas to cut interference and improve workflow. Third, natural lighting and ventilation play essential office in ambiance and energy efficiency, reducing reliance on unreal scheme. Quarter, accessibility submission ensures all exploiter, include those with handicap, can navigate the infinite comfortably. Last, tractability allows future adaptation, create the layout resilient to evolving job demands. These principles collectively shape environments that are not alone efficient but also welcoming and sustainable.

Principle Key Consideration
Traffic Flowing Design intuitive, unobstructed path to guide movement swimmingly
District Freestanding functional, service, and public zone for clarity and role
Natural Lighting Maximize daytime exposure through strategic window placement and skylights
Approachability Incorporate ramp, broad doorways, and tactile guidance for inclusive admission
Flexibility Use modular furniture and adaptable layouts to support succeeding modification

Choose the correct base plan typewrite depends heavily on the edifice's think use. Retail infinite ofttimes gain from an open-concept layout that encourages browse and discovery, while corporate bureau thrive with activity-based act zone that support collaboration and focussing. Hospitality venue may follow circuit-style circulation to channelize guests naturally through key areas like hall, dining, and convenience. Each type necessitate tailored considerations - such as visibility, privacy, and noise control - to align with user expectations and operational goals. Matching the storey plan type to the space's purpose ensures optimal performance and user atonement.

Tone: Always consult local building codes and availability standards before settle any commercial flooring plan to avoid legal issues and assure inclusivity.

Billet: Incorporating technology-friendly substructure early - like robust Wi-Fi and power distribution - supports modernistic concern need and succeeding scalability.

The consolidation of technology into commercial-grade flooring plan has become indispensable. Smart lighting scheme, automated climate controls, and digital wayfinding tools enhance efficiency and user experience. Retailers use synergistic presentation and sensor-driven stock trailing, while offices implement flexile desk booking scheme and video conferencing hub. These creation require careful provision to engraft wiring, connectivity, and device arrangement seamlessly. When perform flop, engineering becomes invisible yet potent, elevating functionality without compromise design unity.

Line: Prioritize user comfort by equilibrize tech consolidation with ergonomic design and visual simplicity to foreclose centripetal overburden.

Beyond engineering, sustainability play a grow role in commercial-grade flooring preparation. Energy-efficient HVAC scheme, low-VOC materials, and green roofs contribute to environmental duty and lower operating price. Natural ventilation and daylight harvesting trim get-up-and-go usance, while reuse or locally sourced stuff downplay ecological impact. Sustainable design not merely indorse bodied social responsibility goal but also draw eco-conscious renter and customer. A well-planned green floor programme align profitability with planetary stewardship.

Note: Evaluate lifecycle costs when selecting materials and systems - initial savings may be offset by high upkeep or replacement disbursal.

Finally, a successful commercial-grade floor plan harmonise human behavior, operable efficiency, and environmental responsibility. It transforms raw space into a dynamic environs that endorse business maturation, enhances client troth, and meditate marque values. By thoughtfully apply partition, traffic management, and sustainable practices, decorator create spaces that are not exclusively functional today but adaptable for tomorrow's challenges.

In every commercial scope, the floor plan is more than a blueprint - it is the foundation of experience, interaction, and success. When cautiously crafted, it go the silent designer mold how people go, employment, and connect within reinforced environment.