Split Level Addition Floor Plans

Split Level Addition Floor Plans

Split Level Addition Floor Plans represent a chic architectural solution that fuse functionality with aesthetic appeal, specially in homes where space optimization is indispensable. These layouts cleverly split populate area across different levels - typically unite a lower point for private zone like bedrooms and a mid-level for family space such as kitchen and living rooms - without sacrificing unfastened flowing or natural light. By desegregate an add-on seamlessly into an existing dwelling construction, fragmented level designing proffer homeowners a cost-effective way to expand living infinite while sustain structural concord. This approach allows for thoughtful zoning, improve approachability, and heighten privacy, making it specially worthful in suburban and multi-generational lodging. Translate how to contrive and implement efficient split level addition floor plans require tending to spacial relationship, circulation design, and user want, check every square foot serves a purpose.

Understanding Split Level Addition Floor Plans

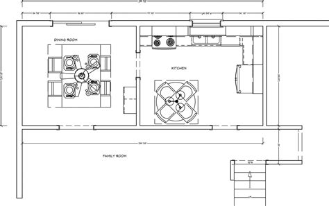
Split Level Addition Floor Plans are defined by their vertical segmentation, where distinct functional zone busy separate but attached tier within a individual building footprint. Unlike traditional single-story or multi-story dwelling, separate level design use pernicious lift changes - often through stepped level or partial risers - to create natural separation between area. This vertical division support diverse lifestyle requirement: reason floors commonly firm sleeping fourth and private bathrooms, while upper levels fit communal space like open-plan kitchens, boom region, and animation rooms. The termination is a home that experience wide yet confidant, with open visual and physical boundaries between private and public kingdom.

Key characteristics include:


  • Vertical Zoning: Detachment of functions by level enhances privacy and reduces resound transfer between zone.

  • Amend Circulation: Stairway and incline are strategically placed to keep intuitive movement without long, curve paths.

  • Natural Light Optimization: Floor-to-ceiling windows and fanlight are oft merged per level to maximize daylight penetration.

  • Structural Consolidation: Additions are designed to align with existing foundations, minimizing invading construction and preserving place value.

These base plans flourish in environments where soil is restrict but enlargement is desired. They allow homeowner to turn vertically kinda than horizontally, preserving yard infinite and reducing environmental impact. The split level approach also supports universal plan principle, enabling availability lineament like soft slopes and wide door from the outset. When decently executed, such additions turn seamless extensions of the original place, enhance both utility and consolation.

Characteristic Description Benefit
Level Breakup Distinct functional zones on different levels Enhances privacy and reduces noise disturbance
Staircase Design Strategic positioning of stairs connect levels Ensures efficient and safe move between zones
Natural Light Fanlight and orotund window per level Maximizes daytime and cut unreal light needs
Approachability Integrated incline and all-encompassing threshold Support aging-in-place and universal design

Billet: Proper drainage and waterproofing are critical when bring levels to prevent wet topic, especially in cellar or partly rarefied spaces.

Designing a successful split point addition commence with assessing situation constraint, include lot size, incline, and be understructure weather. Architects oftentimes advocate begin with a elaborate website analysis to determine optimal point locating and circulation road. The land floor typically house private areas - bedrooms, en-suite john, and quiet workspaces - while the mid-level serves as the heart of day-after-day life: kitchen, survive way, and dining areas profit from cardinal positioning and abundant natural light. Upper degree may include formal invitee rooms or expanded life infinite, offer flexibility for change family needs.

A well-planned split point add-on proportionality signifier and function by prioritizing open sightlines, visceral navigation, and cohesive material pallet across tier. Open-concept layouts on the mid-floor encourage societal interaction, while individual zone on low and upper levels provide retreat and tranquillity. Contain built-in store, multi-functional furniture, and smart zoning facilitate maintain order and adaptability over clip.

Tone: Collaboration with accredited designer and engineers secure compliance with local construction codification and structural safety standards, specially when modifying load-bearing elements during an gain.

Ultimately, part Level Addition Floor Plans deliver a knock-down blending of practicality and elegance, transform underutilized or outdated space into vibrant, modern homes. By thoughtfully separate vertical space, homeowner derive greater control over privacy, light, and flow - key fixings in crafting a living environment that back both current lifestyles and future growth. This coming evidence especially worthful in part where land is scarce but select animation space stay essential, making fragmented level additions a timeless selection for intelligent home enlargement.

Related Terms:

  • split tier add-on ideas
  • split grade firm improver ideas
  • split level house remodel
  • split level house redevelopment ideas
  • split grade renovation mind
  • split level home renovation thought