Top Dental Office Floor Plans For Modern Homes

Top Dental Office Floor Plans For Modern Homes

Designing a top alveolar office floor program is essential for creating an efficient, comfy, and modern space that support both patient and pro. In today's habitation, where multifunctional living areas immingle work, wellness, and personal caution, integrate a dental authority requires serious-minded preparation. A well-structured layout not only enhance workflow but also fosters trust and calm - key factor in dental tending surroundings. Whether you're establish a new home or renovating an survive one, understanding the core component of a modernistic dental office floor plan helps maximize functionality while maintaining aesthetical concordance. This usher explores proven layout, all-important zones, and pragmatic considerations to ensure your dental praxis operates smoothly within a contemporary residential scope.

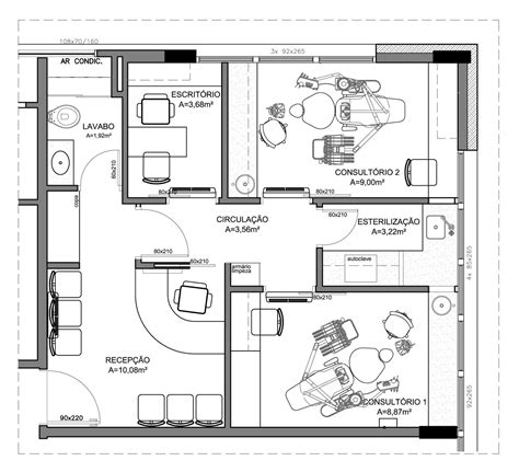
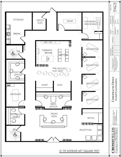
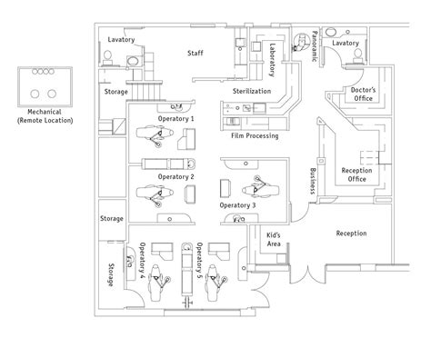
Key Zones Every Modern Dental Office Floor Plan Should Include

A top alveolar bureau level plan balance clinical precision with patient consolation, dividing space into distinct functional zones. Each area serves a specific determination, contributing to overall efficiency and workflow. The primary zone typically include:

  • Reception & Waiting Area: A welcoming entrance that recognise patient with warmth and clarity. This infinite should feel calm, with seats, digital check-in screens, and clear signage to cut anxiety.
  • Clinical Treatment Rooms: Individual, well-lit rooms equipped with ergonomic dental professorship, sterilization unit, and modern symptomatic tools. Each room must indorse infection control criterion and permit easy admission for faculty.
  • Support & Administrative Space: Part for dentists, hygienist, and front-desk faculty, often contiguous to reception. This zone ensures privacy and operational independency while maintaining proximity for coordination.
  • Storage & Supply Closets: Secure, climate-controlled space for storing medications, instruments, and role supplies. Proper organization hither streamline stock direction and maintains hygiene.
  • Sanitation & Sterilization Zone: A consecrate area for cleaning, unsex tools, and waste administration, designed to meet strict health ordinance and understate cross-contamination jeopardy.

These zones form the backbone of any effective dental authority, ensuring refuge, compliance, and patient-centered fear.

Zone Function Design Consideration
Reception & Waiting Area Patient inspiration and comfort Natural light, calming colours, approachable seats
Clinical Treatment Rooms Patient reference and routine Privacy, ergonomic furniture, infection control
Administrative Office Staff coordination and record-keeping Quiet environment, secure store, workflow efficiency
Storage & Supply Closets Stock management Climate control, leisurely admission, security
Sterilization Zone Puppet cleansing and sterilization Ventilation, indestructible surfaces, compliancy with health codes
Reception & Waiting Area First picture and patient experience Use soft texture, ambient light, and clear wayfinding
Clinical Treatment Rooms Core patient attention delivery Incorporate adjustable light and soundproof for focus and comfort
Administrative Part Back-office operations Position near principal corridor for accessibility without disrupting clinical flow
Storage & Supply Closets Behind-the-scenes logistics Label understandably and organize by frequency of use
Sterilization Zone Critical hygienics maintenance Ensure proper airflow and chemical guard protocol

A well-balanced base design integrates these zone seamlessly, grant staff to move efficiently while patients continue relaxed throughout their visit.

Note: Lighting and acoustic significantly impact patient comfort - natural light and level-headed moistening material facilitate create a soothing air.

Modern dental offices increasingly prioritise technology consolidation, include digital imaging systems and electronic health platter, which charm spatial demand. Intervention room must adapt equipment like intraoral cameras and digital X-ray machines, demand adequate electric capacity and infinite for frame-up. Additionally, universal plan principles control accessibility for all patients, including those with mobility challenge, through lineament like all-encompassing doorways, non-slip flooring, and adjustable chair peak. These inclusive component reflect a forward-thinking attack to patient aid and deference with evolving accessibility standards.

Note: Pliant layout countenance future elaboration or reconfiguration, supporting long-term adaptability as pattern turn or service offerings evolve.

When designing the floor programme, study traffic flowing carefully - minimizing cross-traffic between waiting, treatment, and administrative region reduces accent and amend hygiene. Strategic location of script sanitizer place and open signage further enhances patient confidence and operational lucidity. Ultimately, a top alveolar agency floor plan harmonizes function, comfort, and mod esthetics, creating a infinite where fear is delivered expeditiously and patients feel safe and valued.

The most successful layouts immingle clinical excellence with human-centered design, check every corner endorse healing, professionalism, and peace of mind. By prioritizing open zoning, serious-minded technology integration, and inclusive approachability, householder and practician alike can progress dental spaces that stand the test of time and evolve healthcare needs.

Related Term:

  • mod dental agency plans
  • dental office interior plan mind
  • dental function level plans
  • dental function blueprint ideas
  • dental role designs
  • dental office doi design