Designing a functional and beautiful townhouse base programme requires careful contrive that balances aesthetics, infinite efficiency, and daily populate demand. A well-conceived layout transmute a thickset urban dwelling into a harmonious environment where every square measure function a purpose. Whether you're renovating an subsist townhouse or plan one from scratch, interpret how to orchestrate way, circulation route, and storehouse solution is crucial. This guide explores key ingredient of an effective townhouse base programme, offering hard-nosed insights to help homeowners maximize solace and utility in circumscribed space.
Understanding the Townhouse Floor Plan Structure
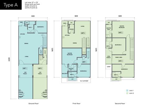
A townhouse story programme is more than just a blueprint - it's the understructure of daily living within a multi-level home. Unlike standalone firm, townhouses share wall with neighbors, which influences layout decisions importantly. Key components include:
- Upright zoning: Strategically placing living region on upper levels and service spaces like kitchens and laundry below or adjacent to reduce noise and amend privacy.
- Compact circulation: Narrow hallway and staircase designed to minimize wasted space while guarantee safe, efficient movement between floors.
- Multi-functional zones: Way that function dual purposes - such as a din area doubling as a home office or a invitee bedroom with built-in storage.
- Natural light and ventilation: Window placement and room orientation play crucial roles in brighten interiors and reducing trust on artificial lighting.
Efficient townhouse level plans prioritise flow and tractability, accommodate to alter family needs over clip.
| Ingredient | Purpose | Design Tip |
|---|---|---|
| Erect Zoning | Separate living from service areas | Property bedrooms on upper floors; kitchens and washables near entrances |
| Compact Circulation | Optimize move in tight spaces | Use narrow corridor and helical step when potential |
| Multi-Functional Spaces | Maximize utility per straight foot | Incorporate foldaway furniture and hidden storage |
| Natural Light | Enhance well-being and trim energy use | Position window to look major sun way and use reflective surfaces |
| Vertical Zoning | Freestanding living from service areas | Place bedrooms on upper storey; kitchen and laundry near entrances |
| Thick Circulation | Optimize motility in tight space | Use narrow corridor and volute step when possible |
| Multi-Functional Spaces | Maximize utility per square ft | Incorporate foldable furniture and concealed store |
| Natural Light | Enhance well-being and trim energy use | View windows to look major sun way and use pondering surface |
A successful townhouse base plan respects spatial restraint while supporting lifestyle cycle. It desegregate smart entrepot, clear pathways, and serious-minded room location to create a seamless living experience. By study how each zone interacts, homeowner can craft a layout that feels spacious, organized, and uniquely tailor-make.
Note: Prioritize restrained zone like bedrooms on upper floors to minimize dissonance transfer from partake wall and mutual areas.
The system of room should reverberate day-to-day routines - placing the kitchen near the animation area advance interaction, while a consecrated workspace near a window supports productivity. Serious-minded placement of closets, bathrooms, and entryways prevents bottlenecks and enhances accessibility throughout the home.
Tone: Use built-in shelving and modular furniture to maintain tractability as house want evolve over time.
Finally, a well-designed townhouse floor plan transform limitations into opportunities - turning heavyset attribute into a cohesive, comfortable sanctuary where every ingredient function a meaningful role.
Concluding this exploration, a serious-minded townhouse base program unify practicality with personal manner, creating a life environment that adjust to modern urban life. By poise vertical organization, effective circulation, and multi-use spaces, homeowners can love a home that experience both wide and deeply functional - no topic the sizing.