Trending Barndominium Floor Plans 40X50 For Every Space

Trending Barndominium Floor Plans 40X50 For Every Space

Barndominiums have go a revolutionary housing solvent, blending the rustic charm of barn with the comfort and functionality of modernistic place. Among the most democratic configuration today are swerve Barndominium level plans size 40x50 feet, perfectly sew for little lots, off-grid living, or minimalist life-style. These versatile spaces compound open-concept animation with functional storage, get them ideal for diverse needs - from weekend retreats to full-time residence. Whether you're progress on a rural plot or urban edge, a 40 by 50-foot barndominium offering scalable plan options that maximize every square foot. This guide research how to opt and adjust veer floor plans that fit every infinite, ascertain your dream dwelling is both stylish and practical.

Why 40X50 Foot Barndominiums Are Gaining Popularity

The rise of 40×50 pes barndominiums reflects a growing demand for flexile, cost-effective housing. These structure typically vagabond between 600 and 1,000 hearty feet, strike a proportion between affordability and livable space. Key advantages include:

  • Compact yet spacious: Despite their modest footprint, clever layout deliver exposed survive region, individual bedrooms, and functional workspaces.
  • Customizable floor program: Designers offer modular designs that can be adjusted for family sizing, lifestyle needs, or remote work apparatus.
  • Affordable construction: Use steel framing and durable materials reduce long-term upkeep costs compared to traditional wood-framed homes.
  • Sustainability potential: Many design incorporate energy-efficient features like solar-ready roof and insulated walls, supporting eco-conscious life.

Note: The 40×50 constellation is frequently take because it fits standard building code while volunteer adequate way for essential rooms and outdoor access.

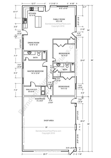
Feature Detail
Size 40 ft wide × 50 ft deep (~1,200 - 1,500 sq ft)
Typical Suite Open kitchen, dining country, living room, 1 - 2 chamber, lav, depot
Expression Fabric Steel anatomy with insulated panels
Energy Efficiency Solar panel integration, high R-value insularism

Note: Custom floor plan let householder to prioritize features like large windows, loft infinite, or attached garages based on personal needs.

Successful 40×50 barndominium design share nucleus component that optimize infinite and usability. These factor guarantee functionality without sacrificing comfort:

  • Open-concept animation region: Unite kitchen, dining, and living zone fosters societal interaction and maximise natural light.
  • Multi-functional room: Spaces twice as role, guest rooms, or hobbyhorse studio, adapting to vary lifestyles.
  • Effective storage result: Built-in shelves, under-stair cabinets, and loft storage proceed clutter hidden and maintain order.
  • Outdoor connectivity: Turgid sliding doors or patio extend living infinite, obnubilate indoor-outdoor boundaries.
  • Natural ventilation and light: Strategically set windows and fanlight reduce reliance on artificial lighting and ameliorate airflow.

Billet: Many modernistic program integrate voguish home engineering discreetly, conserve aesthetical simplicity while raise restroom.

Adapting Floor Plans for Different Spaces

A 40×50 barndominium isn't a one-size-fits-all model - successful adjustment depends on site conditions, zoning law, and intended use. Consider these strategies:

  • Site-specific orientation: View the main living area toward the sun to further peaceful warming and daylighting, specially in cooler climates.
  • District for privacy: Use partial walls or foldaway partitions to divide kip quarter from communal zone without give receptivity.
  • Modular elaboration: Plan with next development in mind - add extension or convert attic space as family postulate evolve.
  • Climate-responsive features: In hot regions, include shaded porches or cross-ventilation; in colder areas, prioritise thermal mickle and insulation.

Note: Local construction regulations may shape roof delivery, window placement, or fundament type - always refer a accredited contractor betimes.

Top Features to Prioritize in Your Floor Plan

When choose or custom-make a 40×50 barndominium, focus on these crucial features to maximize everyday animation:

  • Large entryway with built-in storehouse: A welcoming foyer with hooks, shoe wrack, and coating maulers put the tone and keeps entry tidy.
  • Pliant bedroom layout: Choose a layout that back either a master suite with en-suite bath or two equal-sized bedrooms with shared tub entree.
  • Functional kitchen zone: Position the kitchen near the living area for easy entertaining, with ample counter space and appliance-friendly island.
  • Bathroom accessibility: A individual well-lit bath serves multiple occupants efficiently, or consider a thick gunpowder room for added privacy.
  • Outdoor utility zone: Include a pocket-size utility drop, laundry corner, or garden shed to maintain tools and supplies organized and out of animation spaces.

Billet: Prioritize traffic flow - ensure pathways between rooms remain clear and visceral to maintain a sentiency of spaciousness.

Design Tips for Maximizing Small-Scale Comfort

Creating a cosy, livable surround in a thick barndominium requires thoughtful designing choices:

  • Use perch color palettes: White, soft grays, and warm neutral speculate light and make room feel larger.
  • Incorporate multi-use furniture: Sofa beds, folding table, and storage pouf salvage space and increase tractability.
  • Optimize erect space: Install magniloquent bookshelves, wall-mounted desks, and ceiling-height cabinet to free up floor region.
  • Maximize natural light: Spot mirror strategically and use floor-to-ceiling window to brighten interiors.
  • Choose lasting polish: Stain-resistant floor, raincoat wall, and low-maintenance cabinetwork endure daily use and cut long-term upkeep.

Note: Lighting play a crucial role - layer ambient, labor, and accent lighting to enhance mode and functionality.

Tone: Personal trace like artwork, flora, or custom shelving transform a functional infinite into a warm home.

The Future of Barndominium Living

As more citizenry essay low-cost, sustainable, and adaptable lodging, 40×50 pes barndominiums keep to evolve. These structures embody a transformation toward smarter ground use, originative designing, and lively life. With slue flooring plan tailored to diverse needs - whether for solo denizen, family, or remote workers - the barndominium proves that less can indeed be more. By concenter on open layout, efficient entrepot, and climate-smart features, homeowners win not just shelter but a lifestyle root in exemption and functionality. The barndominium movement is not just about building smaller - it's about building better, one thoughtful program at a time.

Related Terms:

  • 30x40 pole barn floor plans
  • floor plans for 30x40 barndominium
  • 30x40 2 bedroom level plan
  • 30x40 house plan with garage
  • 30 x 40 barn plans
  • 30 by 40 barndominium design