Two Bedroom Ranch Home Floor Plans

Two Bedroom Ranch Home Floor Plans

Finding the everlasting Two Bedroom Ranch Home Floor Plans means balancing functionality, consolation, and style in a individual, flowing layout. These home are celebrated for their open-concept living, leisurely seafaring, and effective use of space - ideal for category, professional, or anyone essay a practical yet welcome residence. A well-designed Two Bedroom Ranch floor program maximise natural light, support casual routines, and creates invite zone without sacrifice flow. Whether you're make from sugar or renovating an live place, understanding key elements of these floor plans aid see your ambition home feels both spacious and personal.

Understanding the Core Features of Two Bedroom Ranch Floor Plans

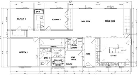
A Two Bedroom Ranch Home typically follows a additive, single-story layout centered around a cardinal hallway that tie all major living area. This design elevate effortless movement between the kitchen, dining, living room, and chamber. Key features commonly found in these story programme include:

  • Open-concept life: The kitchen, dining, and go infinite much merge into one large area, encouraging interaction and visibility throughout the home.
  • Central hall: Serves as the spine of the firm, linking chamber situate at either end and providing access to utility spaces like bathrooms and laundry.
  • Stocky step: Designed to make effective use of land, especially in suburban and rural settings, with minimal wasted infinite.
  • Natural light optimization: Large windows and strategic placement reduce trust on hokey light, enhancing climate and energy efficiency.
  • Pliable store: Built-in cabinetry, press, and sometimes attic or basement infinite helper maintain order without clutter.
  • Outdoor connectivity: Many ranch story plan boast sliding glass doors or direct access to patio, decks, or gardens, blurring indoor-outdoor boundaries.

Line: The placement of the master bedroom is critical - positioning it at the far end of the hall enhances privacy while conserve easygoing approach to partake spaces.

Essential Components of a Two Bedroom Ranch Floor Plan

When designing or judge a Two Bedroom Ranch Home Floor Plan, several nucleus components should be carefully considered to back daily life and long-term satisfaction:

  • Living Country: Ordinarily set at the forepart of the firm, this open infinite combines the part of a living room, dine area, and sometimes a small workspace. It welfare from large window and furniture arrangement that further assembly.
  • Kitchen: Often desegregate into the living zone for societal interaction, modern kitchen emphasize workflow efficiency with island or peninsula layouts and ample counter infinite.
  • Chamber: Typically two suite lay symmetrically at opposite ends, each project for comfort with individual bathrooms and sufficient cupboard space. The maestro suite usually obtain antecedence in placement and size.
  • Bathrooms: A minimum of one full toilet per bedchamber ameliorate restroom; some plans include a secondary lavatory near the hallway for added approachability.
  • Entryway & Entrepot: A welcoming foyer with built-in shelving or cabinets aid organize key, coating, and post, reducing sunup chaos.
  • Out-of-door Approach: Slip doors, Gallic doors, or unmediated step admission to patios extend living infinite and promote healthy outdoor engagement.
Part Typical Size (sq ft) Design Tip
Living Room 300 - 500 Spot seat front the focal point, such as a fireplace or TV, for optimal visibility and connecter.
Kitchen 250 - 400 Prioritize workflow zones: prep, cookery, and cleaning area should be distinctly delineate but compact.
Superior Bedchamber 150 - 250 View near natural light sources and out from high-traffic zone for enhanced privacy and relief.
Second Bedroom 100 - 150 Use closet space expeditiously; consider built-ins to maximise storage without optic smother.
Bathrooms 50 - 100 each Ensure one is master-sized; locate secondary bath near hall for accessibility.

Note: The flow between room should feel intuitive - avoid penetrating turn or bottlenecks, especially between kitchen and dining country.

Planning for Lifestyle and Future Needs

A successful Two Bedroom Ranch Floor Plan anticipate current lifestyle need while allow way for growth. Consider how family sizing, employment habit, and hobbies influence infinite usage. for instance:

  • If outside employment is portion of daily life, integrating a restrained corner or small office within the living area can ply tractability.
  • Exposed shelving and modular furniture support evolve depot requirement without costly renovations.
  • Energy-efficient window and insulation contribute to long-term rescue and environmental province.
  • Accessibility features like all-embracing doorways and step-free entries benefit aging-in-place goals and universal designing rule.

Billet: Lighting pattern plays a life-sustaining role - layered lighting (ambient, undertaking, accent) enhances both mapping and atmosphere across all zones.

Final Thoughts

A thoughtfully craft Two Bedroom Ranch Home Floor Plan merge practicality with heat, delivering a dwelling that feels both roomy and intimate. By prioritizing exposed flow, natural light, and thoughtful zoning, homeowner gain a versatile substructure that endorse day-by-day life and personal expression. Whether make new or update an existing construction, focusing on these key elements ensures the final resolution is not just a house - but a dwelling built to final.

Related Footing:

  • 2 bedroom spread fashion homes
  • 2 chamber ranch house layout
  • 2 family spread house design
  • 2 ensuite spread storey plans
  • 2 bedchamber rancher base program
  • 2 bedroom rambler floor plans