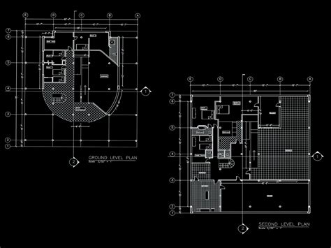
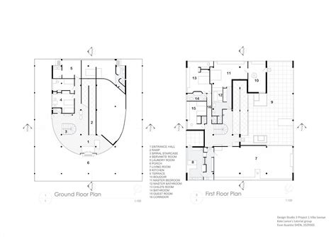
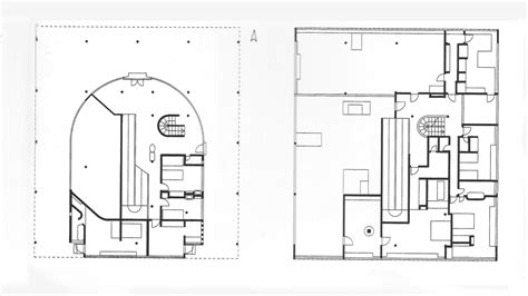
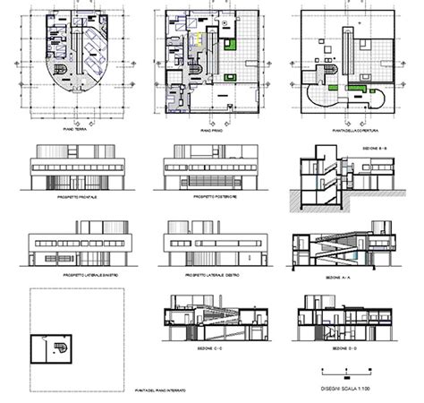
Villa Savoye Floor Plan

Villa Savoye Floor Plan

Villa Savoye, designed by Le Corbusier in 1928, stand as one of the most influential works in modernistic architecture, embodying the principles of the Five Point of Architecture. Central to its design is the Villa Savoye Floor Plan, a virtuoso arrangement that redefined spacial establishment in residential construction. This unfastened, flow layout reject traditional compartmentalization, rather accent light, air, and freedom of motion. The base plan is structured around a open interval of functions - living, quiescency, and service areas - while maintain optic persistence through pilotis, horizontal windows, and roof gardens. Understanding this floor design unveil how Villa Savoye exceed mere construction, becoming a manifesto of architectural purity and human-centered blueprint.

Key Elements of the Villa Savoye Floor Plan

The Villa Savoye Floor Plan is delineate by various revolutionary features that together create a proportionate and functional life environment:

  • Pilotis: Elevated on slender concrete pillars, the principal living volume floats above the reason, unloose the low-toned point for circulation and landscaping. This endorse the firm while symbolise liberation from earthly constraints.
  • Open Floor Plan: Interior walls are minimized, allowing liquid movement between spaces. Animation, dining, and kitchen areas unify seamlessly, further social interaction and a sentiency of spaciousness.
  • Horizontal Windows: Long, continuous set of glassful run along the facade, glut interiors with natural light and framing grand views of the surrounding landscape. These windows also reinforce the horizontal emphasis central to Le Corbusier's aesthetic.
  • Roof Garden: A soaker green space atop the edifice serves as a amateur area and ecological equalizer to the establish volume. It finish the triad of earth, firm, and garden, fulfilling the Five Points sight.
  • Complimentary Frontal: With load-bearing walls decimate, the exterior envelope becomes a canvas for light and shadow, unobstructed by structural necessity. This allows for precise control over clarification and privacy.
Feature Description
Pilotis Concrete piling elevate the chief book, unloose earth level for gardens and pathway.
Open Floor Programme Elimination of national wall creates fluid, complect life space.
Horizontal Windows Long window banding maximize daytime and connect inside with nature.
Roof Garden Green roof provides outside recreation and environmental proportionality.
Free Frontal Exterior wall function entirely as hide, enable full design exemption.

Note: The Villa Savoye Floor Plan reflects Le Corbusier's notion that architecture should function human needs through limpidity, light, and spacial exemption.

The spatial hierarchy is calculated: the ground floor accommodates service mapping and circulation, while the upper level firm private and societal zones. This vertical layering enhances privacy without sacrifice link to the outdoors. The minimalist doi further emphasizes map over ornamentation, aligning with modernist ideals of simplicity and honesty in cloth.

Tone: The integration of the roof garden transforms a technical necessity into a vital lifestyle element, reinforcing the building's relationship with nature.

The Villa Savoye Floor Plan stay a benchmark in architectural education, instance how thoughtful administration of infinite can raise everyday animation. Its legacy bear in contemporaneous design that prioritize openness, light, and concord with the environment.

Understanding this floor plan is indispensable for appreciating modern architecture's evolution - where form follows use, and every line serves a intention. Villa Savoye learn that outstanding design is not just about aesthetic, but about creating spaces that truly indorse human life.

Related Footing:

  • villa savoye floor program behance
  • villa savoye level plan dwg
  • villa savoye archdaily
  • villa savoye by le corbusier
  • villa savoye internal images
  • villa savoye dimensions